EasyManua.ls Logo

ABB ACS880-604

ABB ACS880-604
134 pages
To Next Page IconTo Next Page
To Next Page IconTo Next Page
To Previous Page IconTo Previous Page
To Previous Page IconTo Previous Page
Loading...
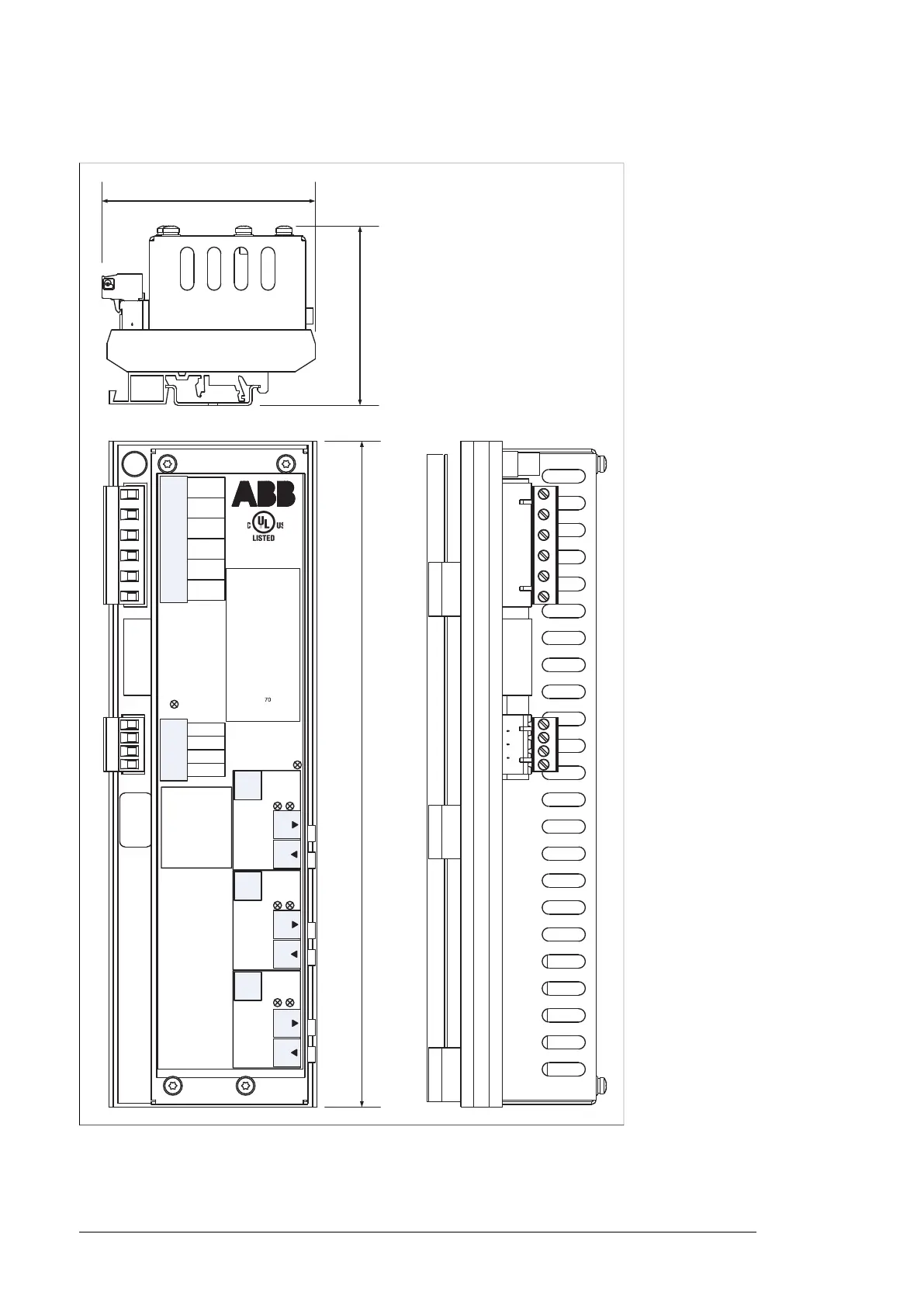
Charging controller
PWR
RATINGS
SUPPLY VOLTAGE (X5)
230 V, 50/60Hz, 20 mA
115 V, 50/60 Hz, 40 mA
SOLENOID CONTROL
OUTPUT (X5) 115/230 V
AC, MAX 2A
EXCITATION VOLTAGE
OUTPUT (X4)
15 V DC, MAX 10mA
OPER. TEMPERATURE
MAX + °C
BSFC-02C
SWITCH FUSE
CONTROLLER
IND. CONT. EQ.
1PD8
UDC
UDC
TO BE USED WITH
ABB DRIVES ONLY.
MAXIMUM RATED
SYSTEM VOLTAGE
UL: 600 V AC
IEC: 690 V AC
UDC
X5
1 L
2 N
3 PE
4
5 LSOL
6 NSOL
X4
1 15V
2 AUX2
3 GND
4 GND
STAT
S3
V3
V4
S2
V1
V2
S1
DIS
EN
DIS
EN
DIS
EN
INV1
INV2
INV3
STAT
STAT
V5
V6
STAT
79 (3.11”)
66.5 (2.62”)247 (9.72”)
122 Dimension drawings

Table of Contents

Related product manuals