EasyManua.ls Logo

ABB ACS880-604

ABB ACS880-604
134 pages
To Next Page IconTo Next Page
To Next Page IconTo Next Page
To Previous Page IconTo Previous Page
To Previous Page IconTo Previous Page
Loading...
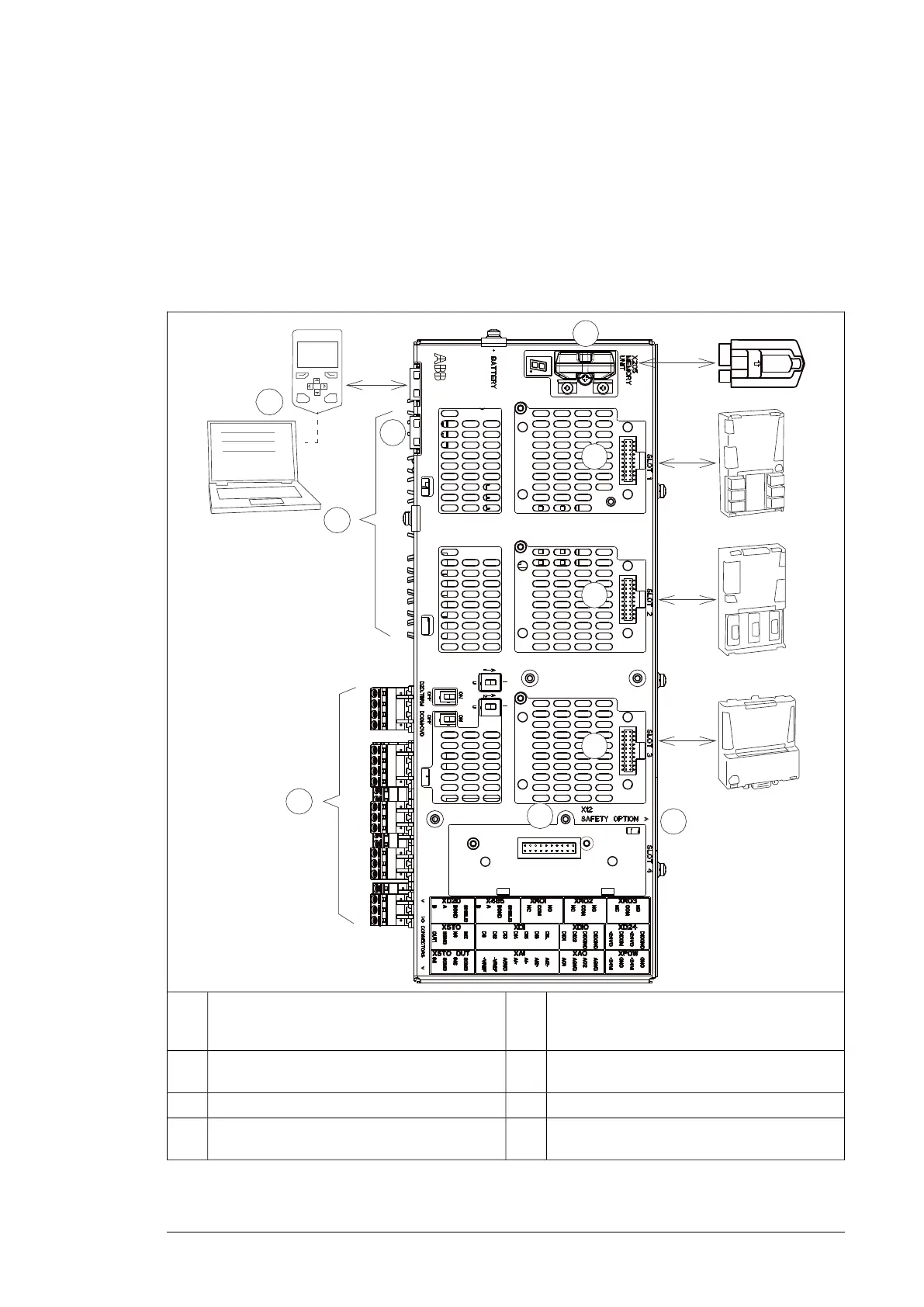
Brake unit control devices
Each brake chopper module employs a dedicated control unit (BCU) that contains the BCON
board with basic I/Os and slots for optional modules. A fiber optic link connects the BCU to
the brake chopper module.
Overview of the control connections of the BCU control unit
The diagram shows the control connections and interfaces of the BCU control unit.
1
2
3
4
5
6
7
F
X
X
F
X
X
F
X
X
X
8
CLOSE
9
10
Control panel.7Analog and digital I/O extension modules and
fieldbus communication modules can be inserted
into slots 1, 2 and 3.
1
2
3
Fiber optic links to power modules (inverter,
supply, brake or converter)
8Memory unit4
Ethernet port. Not in use.9Slot 4 for RDCO-0x5
Safety option interface. Only in use for the invert-
er units.
10Terminal blocks.6
Operation principle and hardware description 23

Table of Contents

Related product manuals