EasyManua.ls Logo

ABB RER620 - Page 292

ABB RER620
584 pages
Print Icon
To Next Page IconTo Next Page
To Next Page IconTo Next Page
To Previous Page IconTo Previous Page
To Previous Page IconTo Previous Page
Loading...
Section 5 1MAC309294-MB F
Control functions
286 RER620
Technical Manual
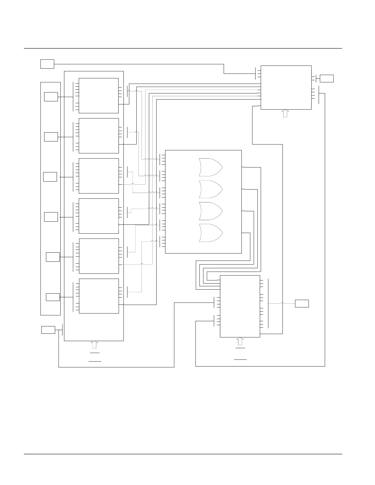
Figure 142: Logical overview diagram with internal connections in overall
Autoreclosing functionality
The logical diagram showing internal connections between SDAIGGIO input blocks,
SDARREC Core block and SDAOGGIO output block is shown in Figure 142.
The 3 sections of overall Autorecloser functionality explained below.
CSWI
51P/
51N
50-1P/
50-1N
50-2P/
50-2N
50-3P/
50-3N
Spare
Output
CbPos_a
CbPos-b
CbPos_c
TripIn_A
TripOut
SDAIGGIO1
Active_A
TripIn_B
TripIn_C
PickupIn_A
PickupIn_B
PickupIn_C
TripIn_3P
Active_B
Active_C
TripIn_N
Active_3P
TripIn_A
TripOut
SDAIGGIO2
Active_A
TripIn_B
TripIn_C
PickupIn_A
PickupIn_B
PickupIn_C
TripIn_3P
Active_B
Active_C
TripIn_N
Active_3P
TripIn_A
TripOut
SDAIGGIO3
Active_A
TripIn_B
TripIn_C
PickupIn_A
PickupIn_B
PickupIn_C
TripIn_3P
Active_B
Active_C
TripIn_N
Active_3P
TripIn_A
TripOut
SDAIGGIO4
Active_A
TripIn_B
TripIn_C
PickupIn_A
PickupIn_B
PickupIn_C
TripIn_3P
Active_B
Active_C
TripIn_N
Active_3P
TripIn_A
TripOut
SDAIGGIO5
Active_A
TripIn_B
TripIn_C
PickupIn_A
PickupIn_B
PickupIn_C
TripIn_3P
Active_B
Active_C
TripIn_N
Active_3P
TripIn_A
TripOut
SDAIGGIO6
Active_A
TripIn_B
TripIn_C
PickupIn_A
PickupIn_B
PickupIn_C
TripIn_3P
Active_B
Active_C
TripIn_N
Active_3P
Settings:
timeUnsuccessfulCB = from DARREC
Three phase lockout override = Disabled or Enabled
Order Code
RecloserType = 1P or 3P
CbPos_b
CbPos_a
Active_PhC
Active_PhB
Active_PhA
Reclose_in
CbPos_c
SDAOGGIO
Open_in
Lockout_in
OpenCb_A
CloseCb_A
Locked_A
Ar_CbPos
OpenCb_B
CloseCb_B
Locked_B
OpenCb_C
CloseCb_C
Locked_C
inProgress_in
OpenCb_3P
CloseCb_3P
Locked_3P
Active_Ph3P
CbPos_3P
Settings:
SinglePhaseMode = APAT, OPUP or OOAP
Order Code
RecloserType = 1P or 3P
67P/
67N
Example
Active_PhA
A
Active5_B
Active5_A
Active5_C
Active1_A
Active2_A
Active3_A
Active4_A
Active5_A
Active6_A
Active_PhB
B
Active1_B
Active2_B
Active3_B
Active4_B
Active5_B
Active6_B
Active_PhC
C
Active1_C
Active2_C
Active3_C
Active4_C
Active5_C
Active6_C
3P
Active1_3P
Active2_3P
Active3_3P
Active4_3P
Active5_3P
Active6_3P
Active5_3P
Active1_B
Active1_A
Active1_C
Active1_3P
Active2_B
Active2_A
Active2_C
Active2_3P
Active3_B
Active3_A
Active3_C
Active3_3P
Active4_B
Active4_A
Active4_C
Active4_3P
Active6_B
Active6_A
Active6_C
Active6_3P
Active_Ph3P
Output
Input
SDARREC
Op (Reclose)
OpOpn (Open)
LO (Lockout)
InIni2
InIni1
InIni3
InIni4
Inini6
InIni5
CB_Pos
inProgress
DARREC Settings
BLOCK
RS_COUNT
RESET
REC_T_STD
REC_T_ELA

Table of Contents

Other manuals for ABB RER620

Related product manuals