EasyManua.ls Logo

Advantage Backyard Buddy - Classic Extra Tall (XT) B-4 P7 XT

Advantage Backyard Buddy
60 pages
Print Icon
To Next Page IconTo Next Page
To Next Page IconTo Next Page
To Previous Page IconTo Previous Page
To Previous Page IconTo Previous Page
Loading...
BYB User Manual Page 12 of 55 PN: 90020 Version: 1.4
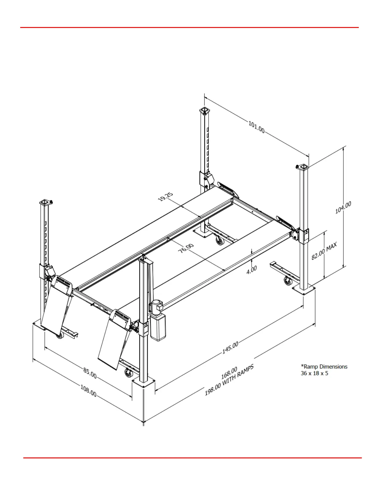
Classic Extra Tall (XT) B-4P7XT
Figure 1.7 Classic Extra Tall Lift Overview

Table of Contents