EasyManua.ls Logo

Advantage Backyard Buddy - Workforce (WF) B-4 P8 WF

Advantage Backyard Buddy
60 pages
Print Icon
To Next Page IconTo Next Page
To Next Page IconTo Next Page
To Previous Page IconTo Previous Page
To Previous Page IconTo Previous Page
Loading...
BYB User Manual Page 13 of 55 PN: 90020 Version: 1.4
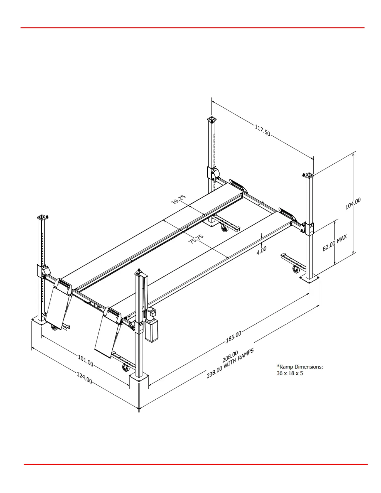
Workforce (WF) B-4P8WF
Figure 1.8 Workforce Lift Overview

Table of Contents