EasyManua.ls Logo

Advantage Backyard Buddy - Wide Buddy & Big Buddy (WB;BB) B-4 P8 WB and B-4 P8 BB

Advantage Backyard Buddy
60 pages
Print Icon
To Next Page IconTo Next Page
To Next Page IconTo Next Page
To Previous Page IconTo Previous Page
To Previous Page IconTo Previous Page
Loading...
BYB User Manual Page 14 of 55 PN: 90020 Version: 1.4
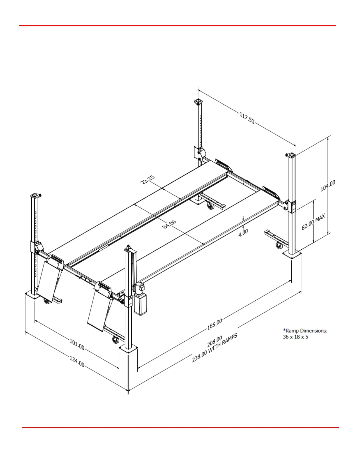
Wide Buddy & Big Buddy (WB/BB) B-4P8WB and B-4P8BB
Figure 1.9 Wide Buddy/ Big Buddy Lift

Table of Contents