EasyManua.ls Logo

Allen-Bradley SLC 500 Series - Page 246

Allen-Bradley SLC 500 Series
694 pages
Print Icon
To Next Page IconTo Next Page
To Next Page IconTo Next Page
To Previous Page IconTo Previous Page
To Previous Page IconTo Previous Page
Loading...
Publication 1747-RM001G-EN-P - November 2008
11-14 Understanding Interrupt Routines
STI Example
0000
S:1
15
First Pass
U
B3:0
0
Indicate Valid
Measurement
MOV
Move
Source 0
0<
Dest N10:2
0<
MOV
0001
T4:0
DN
EN
DN
TON
Timer On Delay
Timer T4:0
Time Base 0.01
Preset 50<
Accum 0<
TON
0002
T4:0
DN
MOV
Move
Source N10:2
0<
Dest N10:3
0<
MOV
0003
END
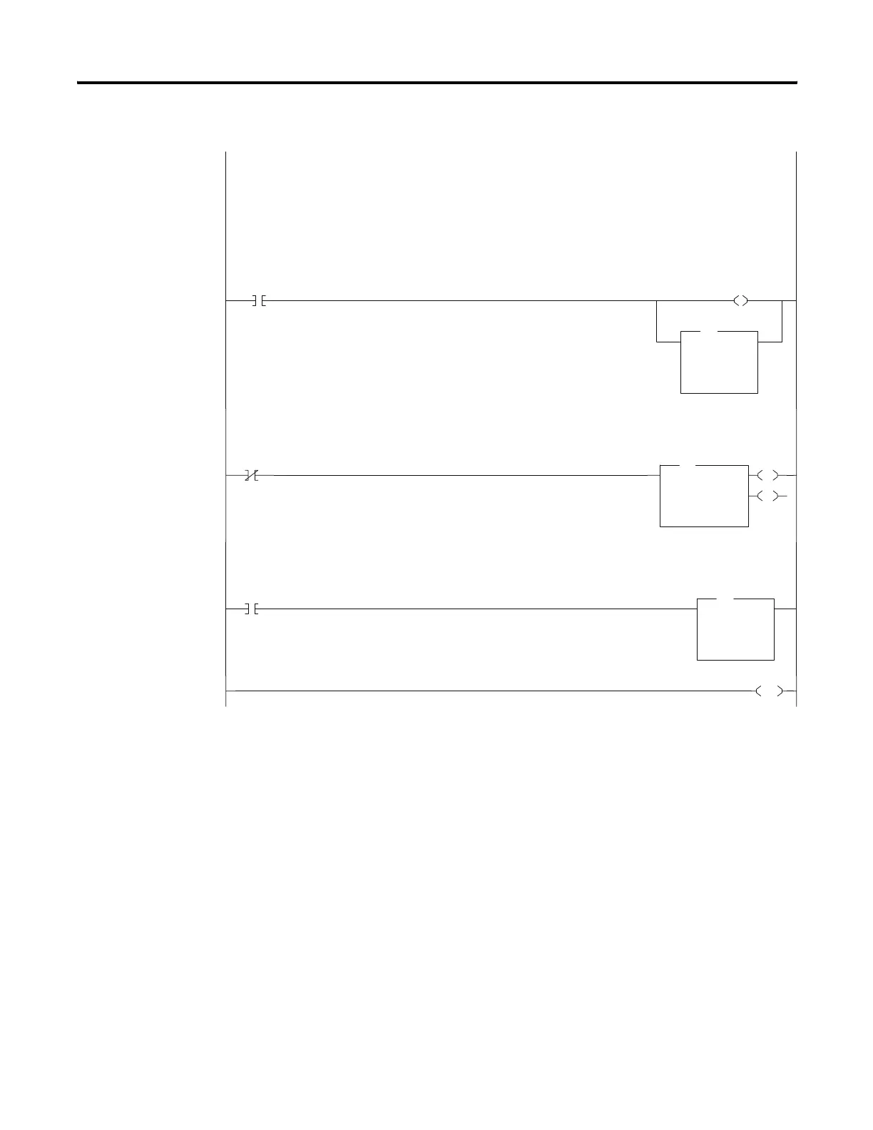
The following program will demonstrate a STI.
The follwoing values need to be loaded into S:30 (1), S:31 (4) and S:2/10 (0) in STI setup.
This will guarantee that subroutine (4) will be executed every 10 ms.
The subroutine program will calculate the time difference from its last execution.
The following rung will ensure that the interrupt measurement is initialized each time the run mode is entered
The following rung will allow a timer to self reset every 1/2 second.
Each time the timer completes, a reading will be displayed for visual purposes.

Table of Contents

Other manuals for Allen-Bradley SLC 500 Series

Related product manuals