EasyManua.ls Logo

Allen-Bradley SLC 500 Series - Page 258

Allen-Bradley SLC 500 Series
694 pages
Print Icon
To Next Page IconTo Next Page
To Next Page IconTo Next Page
To Previous Page IconTo Previous Page
To Previous Page IconTo Previous Page
Loading...
Publication 1747-RM001G-EN-P - November 2008
11-26 Understanding Interrupt Routines
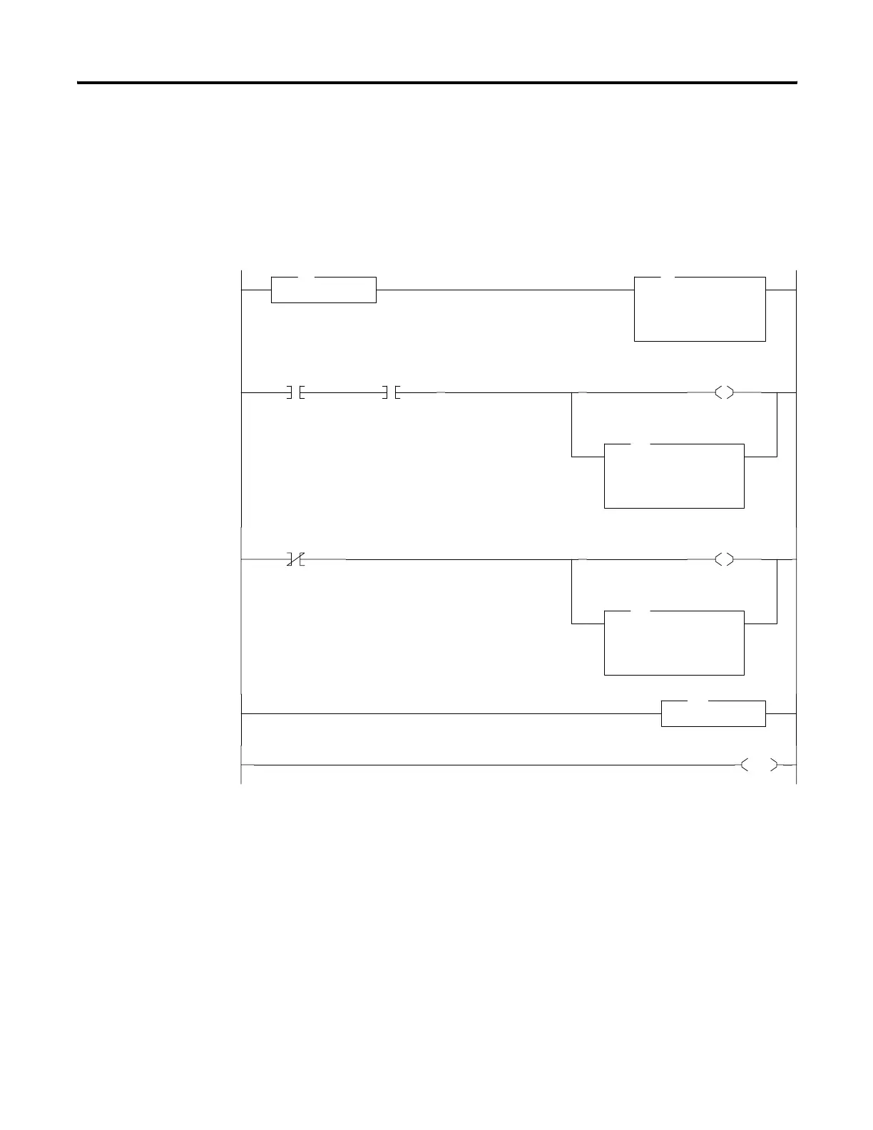
Ladder Diagram for the Bottling Application
0000
INT
I/O Interrupt
INT IIM
Immediate Input w/Mask
Slot I:1.0
Mask 0064h
Length 1
IIM
0001
I:1
8
1746-IA16
Cap Proximity
I:1
0
1746-IA16
Bottle Proximity
U
O:2
0
1746-OW8
Chute Open
IOM
Immediate Output w/Mask
Slot O:2.0
Mask 0001h
Length 1
IOM
0002
I:1
8
1746-IA16
Cap Proximity
L
O:2
0
1746-OW8
Chute Open
IOM
Immediate Output w/Mask
Slot O:2.0
Mask 0001h
Length 1
IOM
0003
e
e
e
e
RET
Return
RET
0004
END
DII Example 4
The following program will demonstrate a DII.
The following values need to be loaded into S:33/8 (1), S:46 (3), S:47 (1), S:49 (1) and S:50 (1) in the DII setup.
This will guarantee that subroutine (3) will be executed every time that I:1.0/0 is true.

Table of Contents

Other manuals for Allen-Bradley SLC 500 Series

Related product manuals