EasyManua.ls Logo

Allen-Bradley SLC 500 Series - Page 275

Allen-Bradley SLC 500 Series
694 pages
Print Icon
To Next Page IconTo Next Page
To Next Page IconTo Next Page
To Previous Page IconTo Previous Page
To Previous Page IconTo Previous Page
Loading...
Publication 1747-RM001G-EN-P - November 2008
SLC Communication Instructions 12-9
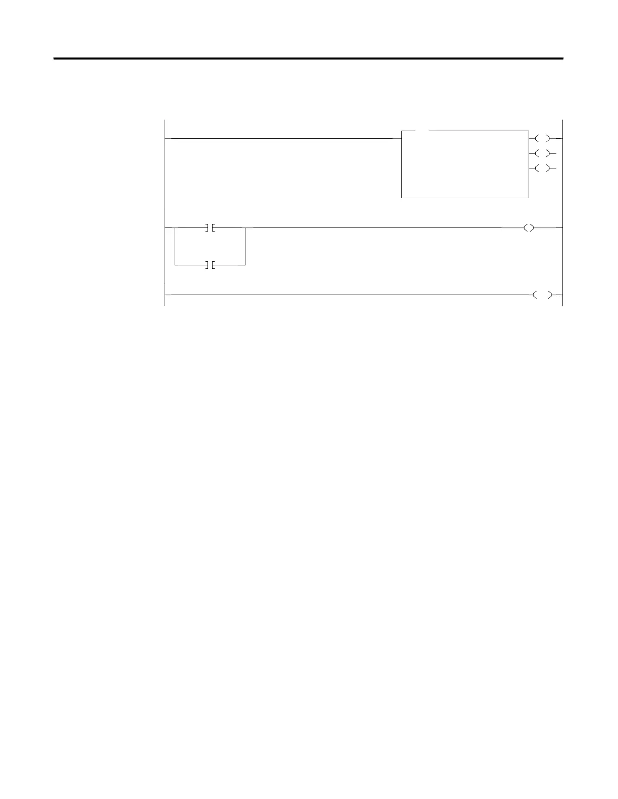
Figure 12.4 SLC 5/03, SLC 5/04, and SLC 5/05 Repeating Messaging Example
For the SLC 5/05 Channel 1 Ethernet, TCP/IP protocol is used to establish
Ethernet connections, in order to send the MSG commands. Connections can
be initiated by either a client program (INTERCHANGE or RSLinx
application) or a processor.
The client program or processor must first establish a connection to the SLC
5/05 to enable the SLC 5/05 to receive solicited messages from a client
program or another processor (incoming connection). The client program
must also establish a connection to the SLC 5/05 to enable the SLC 5/05 to
send unsolicited messages to a client program (outgoing connection).
To send a peer message, the SLC 5/05 must first establish a connection with
the destination node at a specified IP address on the Ethernet network. A
connection is established when a MSG instruction executes and no previous
connection to the same device exists. When a MSG instruction executes, the
SLC 5/05 checks to see whether a connection has been established with the
destination node. If a connection has not been established, the SLC 5/05
attempts to establish a connection of the peer type.
0000
0000
EN
EN
DN
DN
ER
ER
MSG
MSG
Read/Write Message
Read/Write Message
Type
Type
Peer-To-Peer
Peer-To-Peer
Read/Write
Read/Write
Read
Read
Target Device
Target Device
500CPU
500CPU
Local/Remote
Local/Remote
Local
Local
Control Block
Control Block
N9:0
N9:0
Control Block Length
Control Block Length
14
14
Setup Screen
Setup Screen
SLC_503_504_505_MSG
SLC_503_504_505_MSG
0001
0001
N9:0
N9:0
13
13
MSG_DN_BIT
MSG_DN_BIT
N9:0
N9:0
12
12
MSG_ER_BIT
MSG_ER_BIT
U
N9:0
N9:0
15
15
MSG_EN_BIT
MSG_EN_BIT
0002
0002
END
END

Table of Contents

Other manuals for Allen-Bradley SLC 500 Series

Related product manuals