EasyManua.ls Logo

Allen-Bradley SLC 500 Series - Page 661

Allen-Bradley SLC 500 Series
694 pages
Print Icon
To Next Page IconTo Next Page
To Next Page IconTo Next Page
To Previous Page IconTo Previous Page
To Previous Page IconTo Previous Page
Loading...
Publication 1747-RM001G-EN-P - November 2008
Application Example Programs G-7
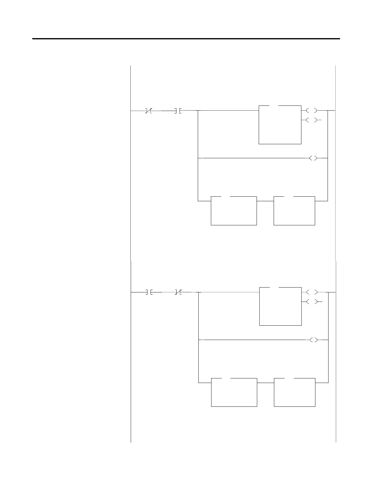
The following rung will keep track of the hole number that is being drilled and loads the next correct DII
preset
based on the hole count. This rung is only active when the "HOLE SELECTOR" switch is in the
"3-HOLE"
position. The sequencer uses step 0 as a null step upon reset. It uses the last step as a "go
forever" in
anticipation of the "end of manual". Movin ga0intoS:49tellstheDIItotrigger an interrupt when the
trailing
edge of the current book is
detected.
0002
I:1
9
1746-IA16
I:1
10
1746-IA16
EN
DN
SQO
Sequencer Output
File #N10:0
Mask 0FFFFh
Dest S:50
Control R6:4
Length 4<
Position 0<
U
R6:4
EN
EQU
Equal
Source A R6:4.POS
0<
Source B 4
4<
MOV
Move
Source 0
0<
Dest S:49
0<
Discrete
Input
Interrupt-
Compare
Value
The following rung is identical to the previous rung except that it is only active when the "HOLE SELECTOR"
switch is in the "5-HOLE" position.
0003
I:1
9
1746-IA16
I:1
10
1746-IA16
EN
DN
SQO
Sequencer Output
File #N10:5
Mask 0FFFFh
Dest S:50
Control R6:5
Length 6<
Position 0<
SQO
U
R6:5
EN
EQU
Equal
Source A R6:5.POS
0<
Source B 6
6<
EQU
MOV
Move
Source 0
0<
Dest S:49
0<
Discrete
Input
Interrupt-
Compare
Value

Table of Contents

Other manuals for Allen-Bradley SLC 500 Series

Related product manuals