EasyManua.ls Logo

Allen-Bradley SLC 500 Series - Page 665

Allen-Bradley SLC 500 Series
694 pages
Print Icon
To Next Page IconTo Next Page
To Next Page IconTo Next Page
To Previous Page IconTo Previous Page
To Previous Page IconTo Previous Page
Loading...
Publication 1747-RM001G-EN-P - November 2008
Application Example Programs G-11
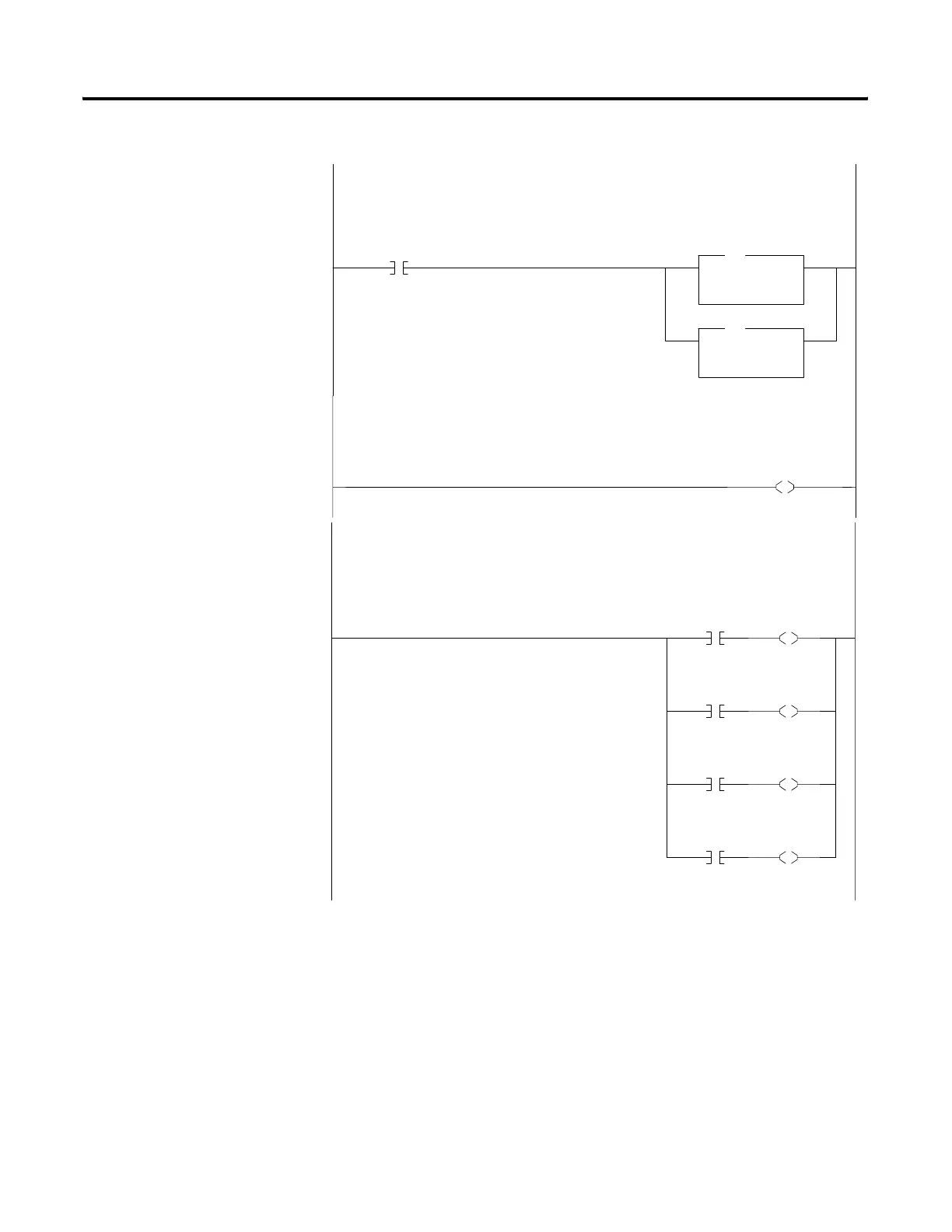
The following rung will reset the number of 1/4" increments and the 1/4" thousands when the "DRILL CHANGE
RESET" keyswitch is energized.
0001
I:1
8
1746-IA16
Drill Change Reset
Keyswitch
CLR
Clear
Dest N7:11
0<
CLR
CLR
Clear
Dest N7:10
0<
CLR
BCD thumbwheel input
0002
B3:1
2
Thumbwheel Section
Comment Bit
The following rung will move the single digit BCD thumbwheel value into an internal integer register. This is
done to properly align the four BCD input signals prior to executing the BCD to integer instruction (FRD).
The
thumbwheel is used to allow the operator to enter the thickness of the paper that is to be drilled. The
thickness
is entered in 1/4" increments. This provides a range of 1/4" to 2.25"
0003
I:1
11
1746-IA16
BCD
Bit 0
N7:14
0
FRD
Bit 0
I:1
12
1746-IA16
BCD
Bit 1
N7:14
1
FRD
Bit 1
I:1
13
1746-IA16
BCD
Bit 2
N7:14
2
FRD
Bit 2
I:1
14
1746-IA16
BCD
Bit 3
N7:14
3
Bit
3

Table of Contents

Other manuals for Allen-Bradley SLC 500 Series

Related product manuals