EasyManua.ls Logo

Ametek Thermox WDG-VC - Page 64

Ametek Thermox WDG-VC
164 pages
Print Icon
To Next Page IconTo Next Page
To Next Page IconTo Next Page
To Previous Page IconTo Previous Page
To Previous Page IconTo Previous Page
Loading...
3-24 | Thermox WDG-V / VC / VCM with Blow Back
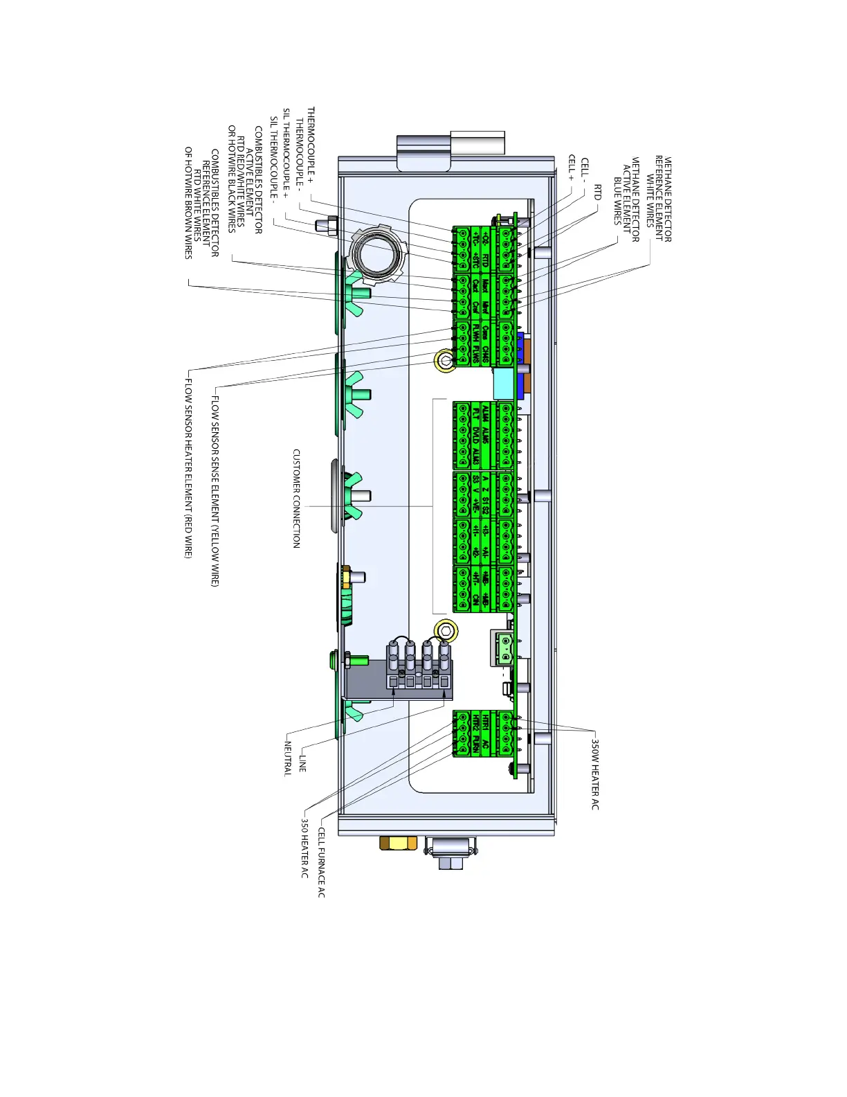
Figure 3-20. Wiring

Table of Contents

Related product manuals