EasyManua.ls Logo

Astoria Core 600 - SAE Version Connection

Astoria Core 600
104 pages
Print Icon
To Next Page IconTo Next Page
To Next Page IconTo Next Page
To Previous Page IconTo Previous Page
To Previous Page IconTo Previous Page
Loading...
TECHNICIANS' manual 83 of 104
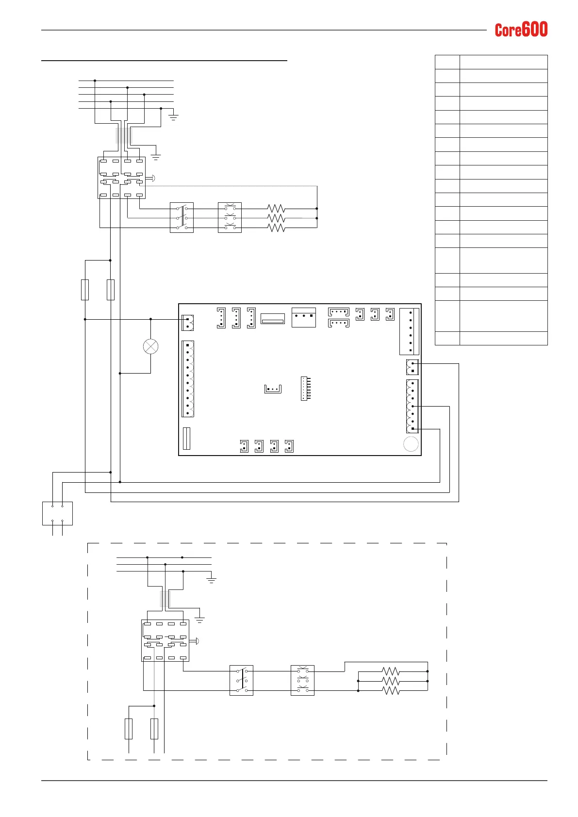
14.7 SAE version connection
ALD LED power supply
BL Blue
CB Wiring
CO Power switch
F1 10 A fuse
F2 6.3 A fuse
GR Grey
GV Yellow green
LA Light switched on
MA Brown
N Neutral
NE Black
PR Pressure switch
R Phase
RE
Heating unit heating
element
RO Red
S Phase
SA
Heat. elem. protect.
thermostat
T Phase
SINGLE-PHASE version
CO
CB
CB
LA
BI
MA
RE
RO
RO
BL



R
S
T
N
MA
BL NE GR GV


 


CO
SAPR
R
N
MA BL
GV


 


SAPR RE
F2F1
F2F1
24V
+ -
ALD
MA

Table of Contents

Related product manuals