EasyManua.ls Logo

Astoria Core 600 - Hydraulic Diagrams for Machine Groups

Astoria Core 600
104 pages
Print Icon
To Next Page IconTo Next Page
To Next Page IconTo Next Page
To Previous Page IconTo Previous Page
To Previous Page IconTo Previous Page
Loading...
TECHNICIANS' manual 91 of 104
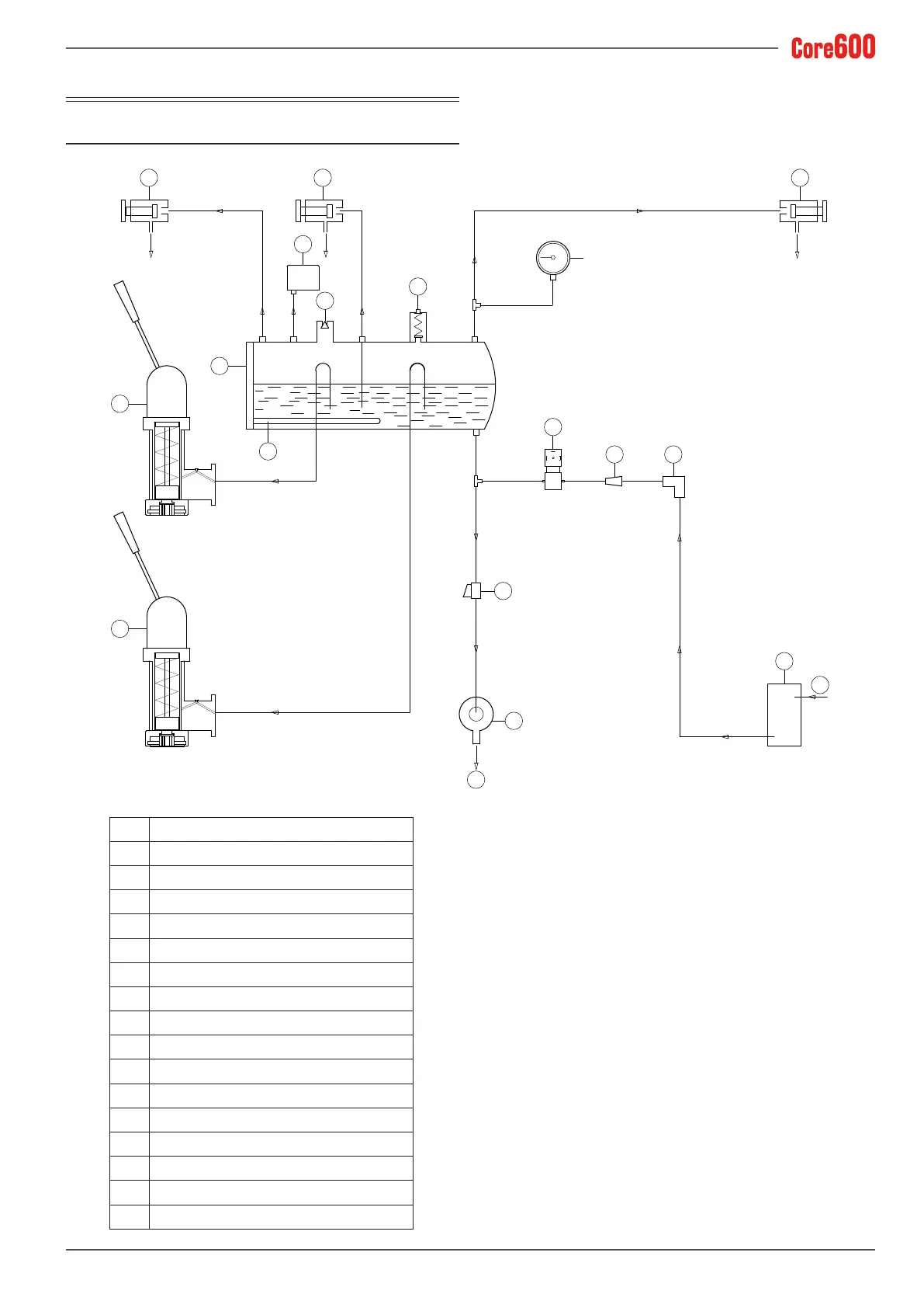
15. HYDRAULIC DIAGRAMS
15.1 LEVER GROUP hydraulic diagram
1 Steam valve
2 Hot water valve
3 Pressure switch
4 Negative pressure valve
5 Safety valve
6 Pressure gauge
7 Heating unit
8 Heating unit heating element
9 Group lever
10 Automatic Water Entry Solenoid Valve
11 Water inlet lter
12 Water inlet connection
13 Valve
14 Drain tray
15 Drain
16 Water lter/ Softener
17 Water inlet
1 2
3
10
11 12
16
17
13
6
14
15
4
5
7
9
9
8
1

Table of Contents

Related product manuals