EasyManua.ls Logo

Astoria Core 600 - AEP Hydraulic Diagram

Astoria Core 600
104 pages
Print Icon
To Next Page IconTo Next Page
To Next Page IconTo Next Page
To Previous Page IconTo Previous Page
To Previous Page IconTo Previous Page
Loading...
TECHNICIANS' manual92 of 104
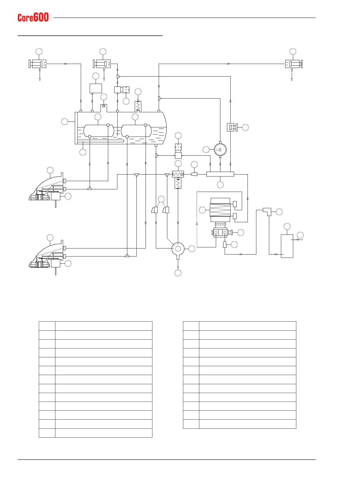
15.2 AEP hydraulic diagram
1 2
3
9
12
18
18
13
14
24
25
21
16
22
23
11
10
17
7
17
14
19
20
9
4
5
6
15
8
1
1 Steam valve
2 Hot water valve
3 Pressure switch
4 Negative pressure valve
5 Safety valve
6 Hot water solenoid valve
7 Heating unit
8 Heating unit heating element
9 Heat exchanger
10 Mixed water adjustment solenoid valve
11 Pressure gauge
12 Automatic Water Entry Solenoid Valve
13 SCNR valve
14 Water inlet lter
15 Dispenser
16 Valve
17 Group solenoid valve
18 Dispensing group
19 Drain tray
20 Drain
21 Motor pump
22 Pump pressure adjustment
23 Water inlet connection
24 Water lter/ Softener
25 Water inlet

Table of Contents

Related product manuals