EasyManua.ls Logo

Bosch 4100XC - Dispositivo Antirretroceso; Elaboración de Los Ayudantes de Trabajo; Elaboración del Palo de Empujar y el Bloque de Empujar

Bosch 4100XC
156 pages
Print Icon
To Next Page IconTo Next Page
To Next Page IconTo Next Page
To Previous Page IconTo Previous Page
To Previous Page IconTo Previous Page
Loading...
134
Utilización básica de la sierra de mesa
previene los daños relacionados con la os-
cilación del protector durante la reubicación.
Si se va a transportar una distancia más larga
en el trabajo o fuera del mismo, coloque el
protector en su posición de almacenamiento
debajo de la mesa (vea la Figura 17,
página 125).
DISPOSITIVO ANTIRRETROCESO
En caso de retroceso, el dispositivo antir-
retroceso está diseñado para ayudar a evitar
que la tabla sea lanzada en dirección al
usuario. Los dientes afilados de los trin-
quetes están diseñados para “atrapar” el ma-
terial en caso de retroceso.
El dispositivo antirretroceso se puede instalar
fácilmente alineando la espiga de sujeción
con el agujero ubicado en la parte de atrás de
la cuchilla separadora / separador. Dicho dis-
positivo se puede retirar fácilmente presion-
ando las almohadillas de compresión
ubicadas a ambos lados del dispositivo antir-
retroceso y levantando dicho dispositivo.
Elaboracn de los ayudantes de
trabajo
Antes de cortar cualquier madera en la sierra,
estudie el “Utilización básica de la sierra de
mesa”.
Observe que para hacer algunos de los cortes
es necesario utilizar ciertos dispositivos,
“ayudantes de trabajo”, como el palo de em -
pujar, el bloque de empujar y el tope-guía
auxiliar, que se puede hacer usted mismo.
Después de realizar unos cuantos cortes de
práctica, haga estos “ayudantes” antes de
comenzar cualquier proyecto. Haga primero
el palo de empujar.
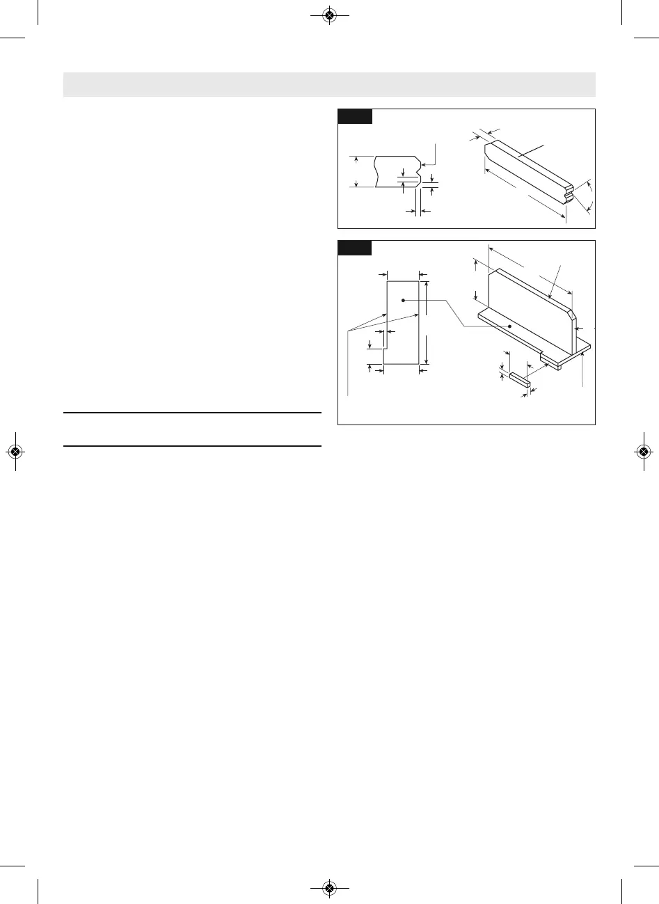
ELABORACIÓN DEL PALO DE
EMPUJAR Y EL BLOQUE DE EMPUJAR
Haga un palo de empujar 1 usando un pedazo
de madera de 1 x 2 (19x38mm), de la manera
que se muestra en la ilustración (Fig. 38).
Para obtener información sobre el uso cor-
recto del palo de empujar, consulte la página
137.
Haga el bloque de empujar 2 utilizando peda-
zos de madera contrachapada 3/8" (8,7mm),
3, y de madera dura de 3/4" (19mm), 4, (Fig.
39). El palo de empujar se deberá utilizar en
combinación con el tope-guía auxiliar sola-
mente. Para obtener información sobre cómo
utilizar apropiadamente el bloque de empu-
jar, consulte la página 138.
El pedazo pequeño de madera de 3/8"x
3/8" x 2-1/2" (9,5 x 9,5 x 63,5 mm) se debe
ENCOLAR a la madera contrachapadaNO
USE CLAVOS. Esto tiene como fin evitar mel-
lar la hoja de sierra en caso de que usted
corte por error en el bloque de empujar.
Posicione el mango en el centro de la madera
contrachapada y sujete el mango a la madera
usando adhesivo y tornillos para madera.
Use un palo de empujar siempre que el tope-
guía para cortar al hilo esté a 2 pulgadas
(50mm) o más de la hoja. Utilice un bloque
de empujar cuando la operación sea demasi-
ado estrecha como para permitir el uso de un
palo de empujar. Para obtener información
sobre cómo utilizar apropiadamente el palo
de empujar, consulte la página 137.
Se deben usar tanto un palo de empujar
como un bloque de empujar en lugar de la
mano del usuario para guiar el material sola-
mente entre el tope-guía para cortar al hilo y
la hoja.
Cuando utilice un palo de empujar o un
bloque de empujar, el extremo de salida de la
tabla debe estar en ángulo recto. Un palo de
empujar o un bloque de empujar contra un
extremo desigual podría resbalar o empujar
la pieza de trabajo alejándola del tope-guía
para cortar al hilo.
3/4" (19mm)
1/4" (6.4mm)
1/4" (6.4mm)
1-1/2"
(38mm)
1
/4" (6.4mm)
1
5
"
(
3
8
1
m
m
)
MUESCA
DE 4
1
EXTREMO DE LA
PIEZA DE TRABAJO
Fig. 38
1
2
"
(
3
0
5
m
m
)
5
"
(127mm)
2
-
1
/
2
"
(
6
3
.
5
m
m
)
3
/
8
"
(
9
.
5
m
m
)
3/8"
(9.5mm)
3/8"
(9.5mm)
4-3/4"
(120.6mm)
12"
(305mm)
5-1/8"
(130mm)
2-1/2"
(63.5mm)
3
4
ESTOS BORDES DEBEN
SER PARALELOS
2
Fig. 39
1600A01Z1U.qxp_4100XC 10/31/19 1:22 PM Page 134

Table of Contents

Related product manuals