EasyManua.ls Logo

Bosch 4100XC - Fabrication Dune Planche Àlanguettes; Fabrication du Bloc Dappoint; Fabrication Dun Support Auxiliaire Pour Le Guide de Refente

Bosch 4100XC
156 pages
Print Icon
To Next Page IconTo Next Page
To Next Page IconTo Next Page
To Previous Page IconTo Previous Page
To Previous Page IconTo Previous Page
Loading...
82
Fonctionnement basique de la scie à table
poussoir 2 et le guide de coupe auxiliaire 5
seront utilisés conjointement, les cotes de 4
po 3/4 (120,6mm) doivent être rigoureuse-
ment identiques sur les deux pièces.
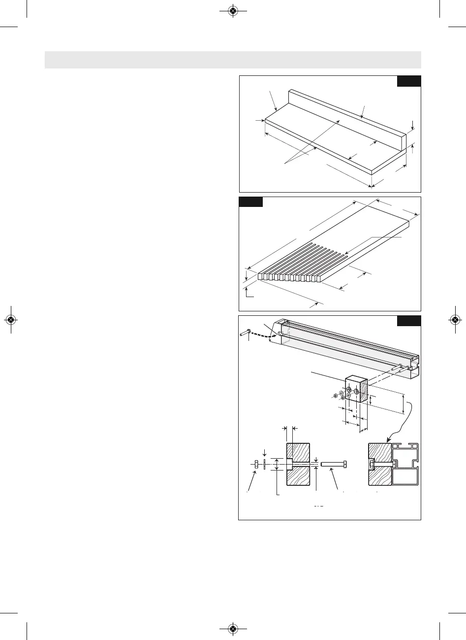
FABRICATION D’UNE PLANCHE À
LANGUETTES
La figure 41 présente les cotes nécessaires à
la fabrication d’une planche à languettes
type. Utilisez une planchette plane ne com -
portant ni noeuds, ni fentes.
Le trait de scie 5 doit être d’environ 1/4 po
(6,35mm) largeur (Fig. 41).
FABRICATION DU BLOC D'APPOINT
Le bloc d'appoint doit être fabriqué à partir
d'un bois de 1 1/2 po (38mm) d'épaisseur –
la Figure 42 montre les dimensions pour la
fabrication d'un bloc d'appoint.
Pièces requises :
- Planche de bois de 1 1/2 po d'épaisseur
coupée à la taille désirée (1)
- Vis mécaniques à tête hexagonale de
1/4 x 20 x 1 1/2 po de long (2)
- Rondelles de 1/4 po (2)
- Écrous mécaniques de 1/4 x 20 (2)
Le bloc d'appoint est fabriqà la même hau-
teur (2 3/4 po [70mm]) que le guide de
refente et peut être utilisé avec le système de
protège-lame en place quand les pièces
coupées ont une épaisseur de 1 1/2 po
(38mm) ou plus. Coupez la planche à la taille
montrée, percez des trous de 9/32 po (7mm),
puis fraisez chaque trou (jusqu'à 3/8 po
[9,5mm]) avec un embout foret de 3/4 po
(19mm).
Assemblage :
A. Placez la tête hexagonale 1 de chaque
vis mécanique dans l'encastrement 2
dans le logement du guide arrre puis
faites glisser chaque vis vers l'avant,
jusqu'aux endroits illustrés.
B. Placez le bloc d'appoint 3 au-dessus des
vis.
C. Placez les rondelles au-dessus des filets
de vis.
D. Enfilez et serrez les écrous autour des
vis.
FABRICATION D’UN SUPPORT
AUXILIAIRE POUR LE GUIDE DE
REFENTE
Lorsque vous utilisez des accessoires tels que
des fers pour des rainures ou des moulures, il
faut également utiliser une planche d'appoint.
Ceci contribuera à éviter d'endommager le
guide de refente en aluminium. La planche d'ap-
point doit consister en un morceau de bois de
3/4 po d'épaisseur la Figure 43 montre des
plans dimensionnels permettant de fabriquer
4
-
3
/
4
"
(
1
2
0
.
6
m
m
)
5
-
1
/
2
"
(
1
3
9
.
7
m
m
)
2-1/4"
(57.2mm)
2
1
-
1
/
2
"
(
5
4
6
m
m
)
CETTE FACE ET
CE BORD
DOIVENT ÊTRE
PARALLÈLES
4
3
Fig. 40
5
5
"
(
1
2
7
m
m
)
4
-
1
/
2
"
(
1
1
4
m
m
)
2
5
"
(
6
3
5
m
m
)
8
"
(
2
0
3
m
m
)
3/4"
(19mm)
5
Fig. 41
⌀3/4"
(19mm)
⌀9/32"
(7mm)
HOLE
1/4" x 20 x 1-1/2" LONG
STANDARD HEX. HEAD
2
-
3
/
4
"
(
7
0
m
m
)
5
/
8
"
(
1
6
m
m
)
5
/
8
"
(
1
6
m
m
)
2
-
1
/
2
"
(
6
3
.
5
m
m
)
1
-
3
/
8"
(
3
5
m
m
)
1/4" x 20
HEX. NUT
WASHER
3/8" (9.5mm)
1
-
1
/
2
"
(
3
8
m
m
)
1
2
3
Fig. 42
RONDELLES
TÊTE SIX
PANS 1/4
PO X 20
TÊTE SIX PANS STANDARD
LONGUE 1/4 PO X 20
X 1-1/2 PO
TROU
1600A01Z1U.qxp_4100XC 10/31/19 1:22 PM Page 82

Table of Contents

Related product manuals