EasyManua.ls Logo

Bosch 4100XC - Elaboración de un Tope-Guía Auxiliar; Cómo Hacer una Tabla con Canto Biselado; Elaboración del Bloque de Refrentado

Bosch 4100XC
156 pages
Print Icon
To Next Page IconTo Next Page
To Next Page IconTo Next Page
To Previous Page IconTo Previous Page
To Previous Page IconTo Previous Page
Loading...
135
Utilización básica de la sierra de mesa
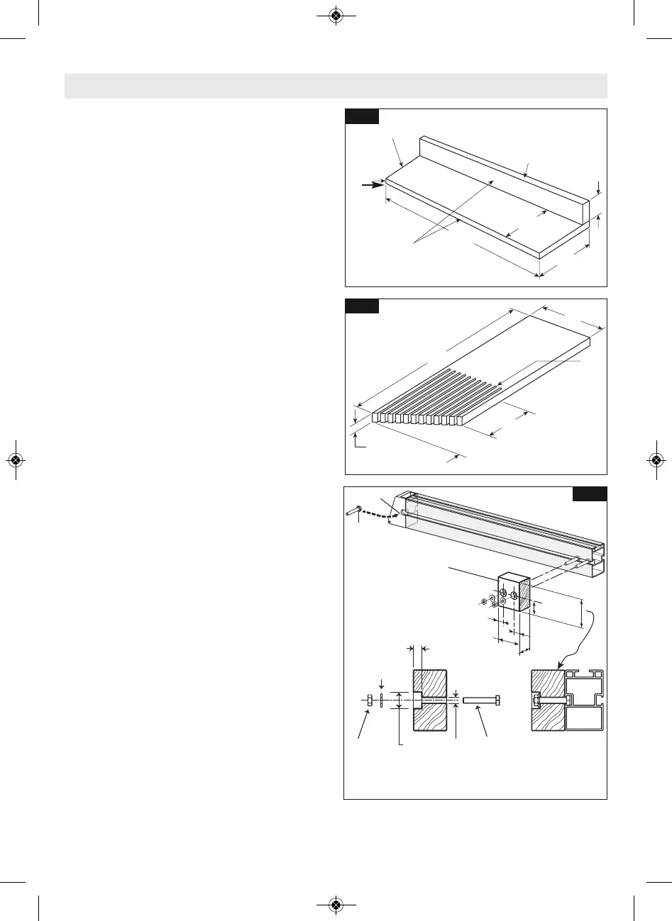
ELABORACIÓN DE UN TOPE-GA
AUXILIAR
Haga uno utilizando pedazos de madera con-
trachapada de 3/8" (8,7mm) 3 y de madera
dura de 3/4" (19mm) 4. Fije los pedazos uno
a otro con cola y tornillos para madera
(Fig. 40).
NOTA: Como el bloque de empujar 2 se uti-
liza con el tope-guía auxiliar 5, las dimen-
siones de 4-3/4" (120,6mm) se deben
mantener idénticas en ambos pedazos.
MO HACER UNA TABLA CON
CANTO BISELADO
La figura 41 ilustra las dimensiones para
hacer una tabla con canto biselado típica. Se
debe hacer utilizando un pedazo recto de
madera que esté libre de nudos o grietas.
La separacion de corte 5 debe ser de 1/4"
(6,35mm) (Fig. 41).
ELABORACIÓN DEL BLOQUE DE
REFRENTADO
El bloque de refrentado se debe hacer con
madera de 1-1/2 pulgadas (38mm) de grosor.
La Figura 42 muestras las dimensiones para
hacer un bloque de refrentado.
Piezas necesarias:
- Tabla de madera de 1-1/2” de grosor
cortada con el tamaño deseado (1)
- Tornillos de cabeza hexagonal para met-
ales de 1/4 x 20 x 1-1/2” de longitud (2)
- Arandelas de 1/4” (2)
- Tuercas para tornillos para metales de
1/4 x 20 (2)
El bloque de refrentado se hace con la misma
altura (2-3/4" [70mm]) que el tope-guía y puede
funcionar con el sistema de protector de la hoja
colocado en su sitio cuando las piezas cortadas
midan 1-1/2 pulgadas (38mm) o más. Corte la
tabla con el tamaño mostrado, taladre en ella
agujeros pasantes de 9/32" (7mm) y luego avel-
lane cada agujero (hasta 3/8 de pulgada
[9,5mm]) utilizando una broca taladradora de
3/4 de pulgada (19mm).
Ensamblaje:
A. Coloque la cabeza hexagonal 1 de cada
tornillo para metales en el área rebajada
2 de la carcasa del tope-ga para cortar
al hilo trasero. Luego, deslice cada
tornillo hacia delante hasta las ubica-
ciones mostradas.
B. Coloque el bloque de refrentado 3
sobre los tornillos
C. Coloque las arandelas en las roscas de
los tornillos
4
-
3
/
4
"
(
1
2
0
.
6
m
m
)
5
-
1
/
2
"
(
1
3
9
.
7
m
m
)
2
-1/4"
(
57.2mm)
2
1
-
1
/
2
"
(
5
4
6
m
m
)
ESTA CARA Y
ESTE BORDE
DEBEN
ER PARALELOS
4
3
Fig. 40
5
5
"
(
1
2
7
m
m
)
4
-
1
/
2
"
(
1
1
4
m
m
)
2
5
"
(
6
3
5
m
m
)
8
"
(
2
0
3
m
m
)
3/4"
(19mm)
5
Fig. 41
⌀3/4"
(19mm)
⌀9/32"
(7mm)
HOLE
1/4" x 20 x 1-1/2" LONG
STANDARD HEX. HEAD
2
-
3
/
4
"
(
7
0
m
m
)
5
/
8
"
(
1
6
m
m
)
5
/
8
"
(
1
6
m
m
)
2
-
1
/
2
"
(
6
3
.
5
m
m
)
1
-
3
/
8"
(
3
5
m
m
)
1/4" x 20
HEX. NUT
WASHER
3/8" (9.5mm)
1
-
1
/
2
"
(
3
8
m
m
)
1
2
3
Fig. 42
ARANDELA
CABEZA
HEXAGO-
NAL 1/4
PULG. X 20
PULG.
CABEZA HEXAGONAL ESTÁN-
DAR DE 1/4 PULG. X 20 X 1-
1/2 PULG. DE LARGO
AGU -
JERO
1600A01Z1U.qxp_4100XC 10/31/19 1:22 PM Page 135

Table of Contents

Related product manuals