EasyManua.ls Logo

Calorex PPT12 - Page 32

Calorex PPT12
119 pages
Print Icon
To Next Page IconTo Next Page
To Next Page IconTo Next Page
To Previous Page IconTo Previous Page
To Previous Page IconTo Previous Page
Loading...
Page 29
Calorex Heat Pumps Ltd. · The Causeway, Maldon, Essex CM9 4XD, UK
Technical Manual
PPT8/12/16/22LX/LY SLIMLINE
SD638160 ISSUE 22d
®
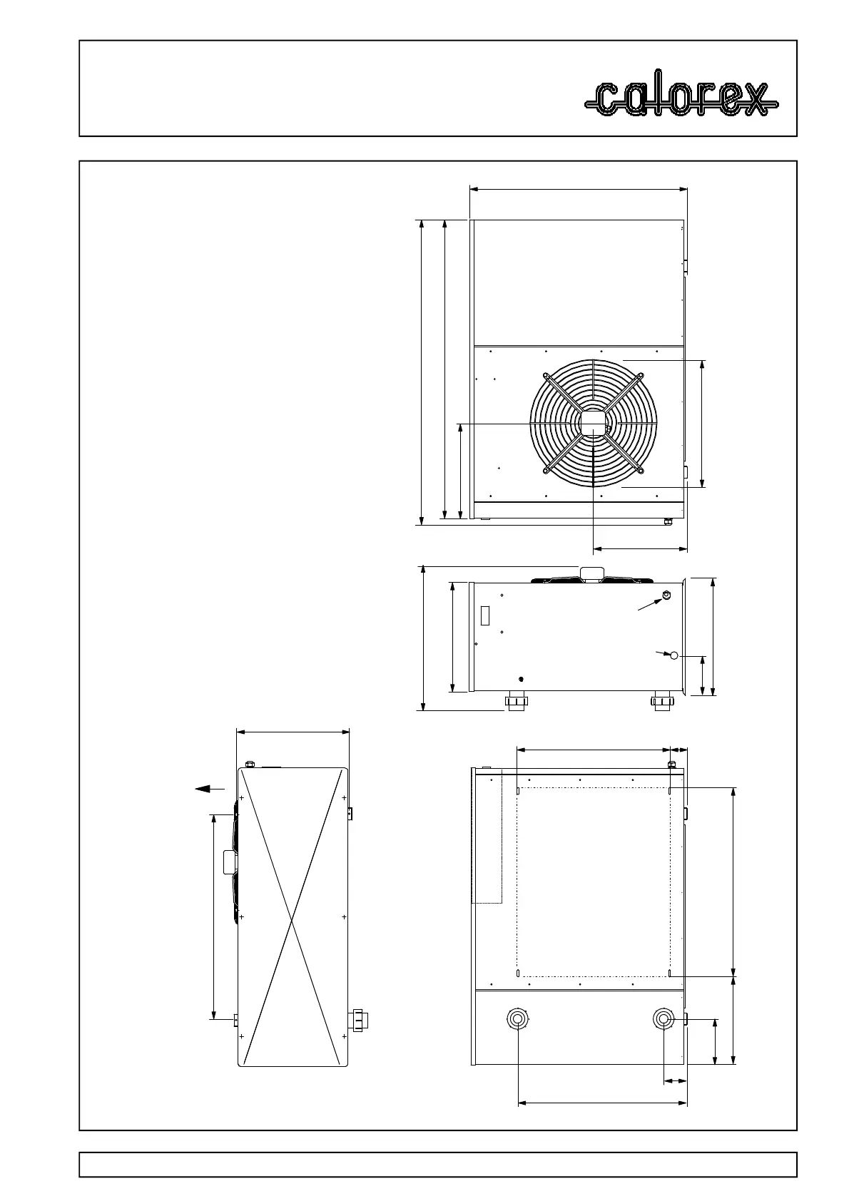
PPT22
WATER IN/OUT 1½" or 50mm FEMALE
CONDENSATE ¾" DOMESTIC WASTE
97
707
188
364.25
789
70
641
WATER OUT
WATER IN
390.50
528
394.75
1237
1263.50
904
AIR OFF
AIR ON
470
844
457
490
165.50
CONDENSATE
THERMOSTAT
600
MAINS IN

Table of Contents

Other manuals for Calorex PPT12

Related product manuals