EasyManua.ls Logo

Calorex PPT12 - Ppt 22 Alx;Blx

Calorex PPT12
119 pages
Print Icon
To Next Page IconTo Next Page
To Next Page IconTo Next Page
To Previous Page IconTo Previous Page
To Previous Page IconTo Previous Page
Loading...
Page 37
Calorex Heat Pumps Ltd. · The Causeway, Maldon, Essex CM9 4XD, UK
Technical Manual
PPT8/12/16/22LX/LY SLIMLINE
SD638160 ISSUE 22d
®
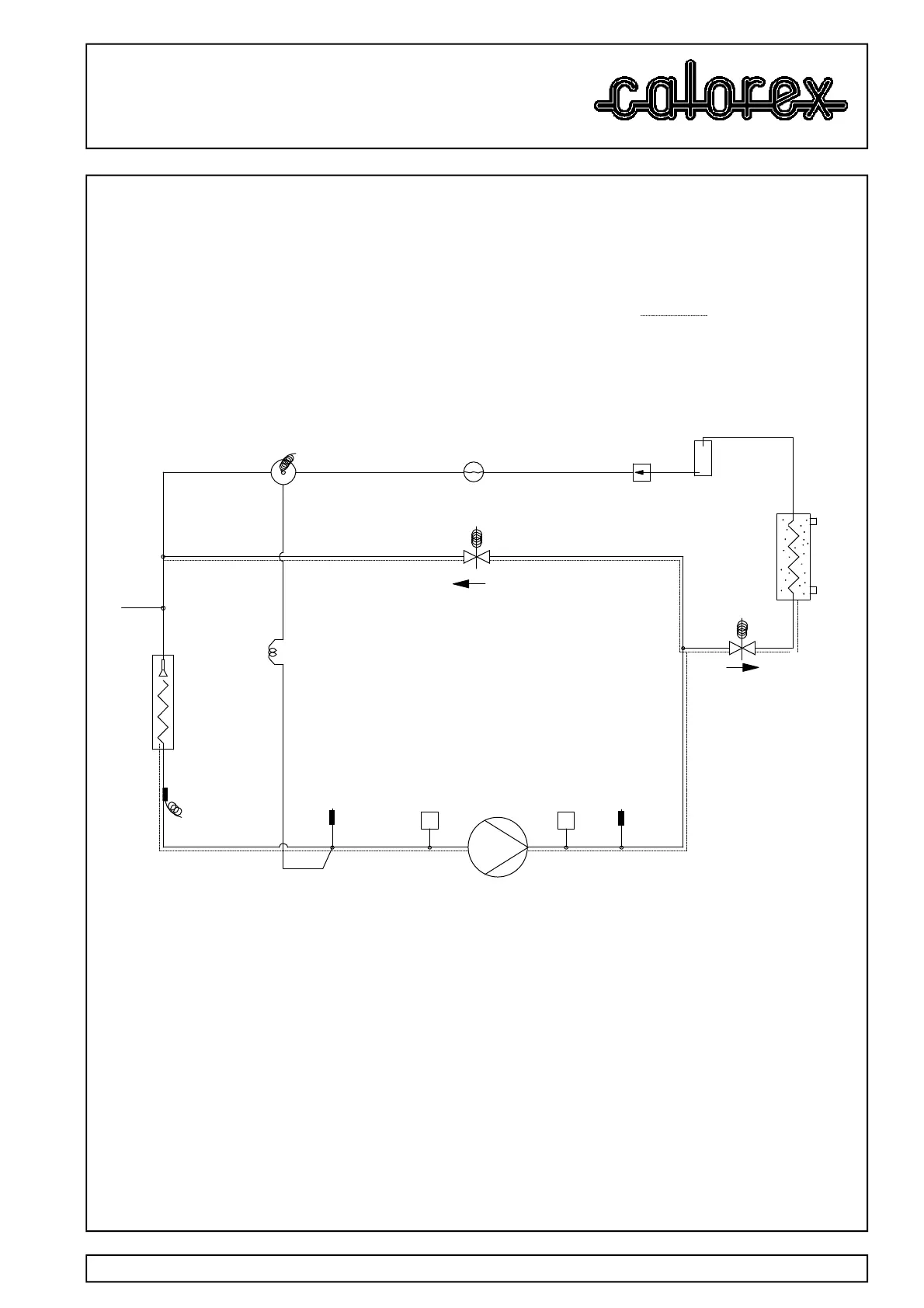
D332456
HP SERVICE
SCHRADER
LIQUID
INDICATOR
LP SERVICE
SCHRADER
EVAPORATOR
COMP
HP
TEV
WATER
CONDENSER
PORT
PROCESS
LP
RECEIVER
DRIER
1/8 CAPILLARY
1 TURN
50mm DIA
SOLENOID
VALVE B
SOLENOID
VALVE A
TEV
PHIAL
= INSULATION
PPT 22ALX/BLX

Table of Contents

Other manuals for Calorex PPT12

Related product manuals