EasyManua.ls Logo

Calorex PPT12 - Electric Box Assy Ppt16 Aly(S)

Calorex PPT12
119 pages
Print Icon
To Next Page IconTo Next Page
To Next Page IconTo Next Page
To Previous Page IconTo Previous Page
To Previous Page IconTo Previous Page
Loading...
Page 53
Calorex Heat Pumps Ltd. · The Causeway, Maldon, Essex CM9 4XD, UK
Technical Manual
PPT8/12/16/22LX/LY SLIMLINE
SD638160 ISSUE 22d
®
SA639110
1 PJ 18/09/12 1:2
SHT No. CONT' DRAWN
ALL SHARP EDGES AND BURRS TO BE REMOVED
DRG No.
APPROVED DATE SCALE
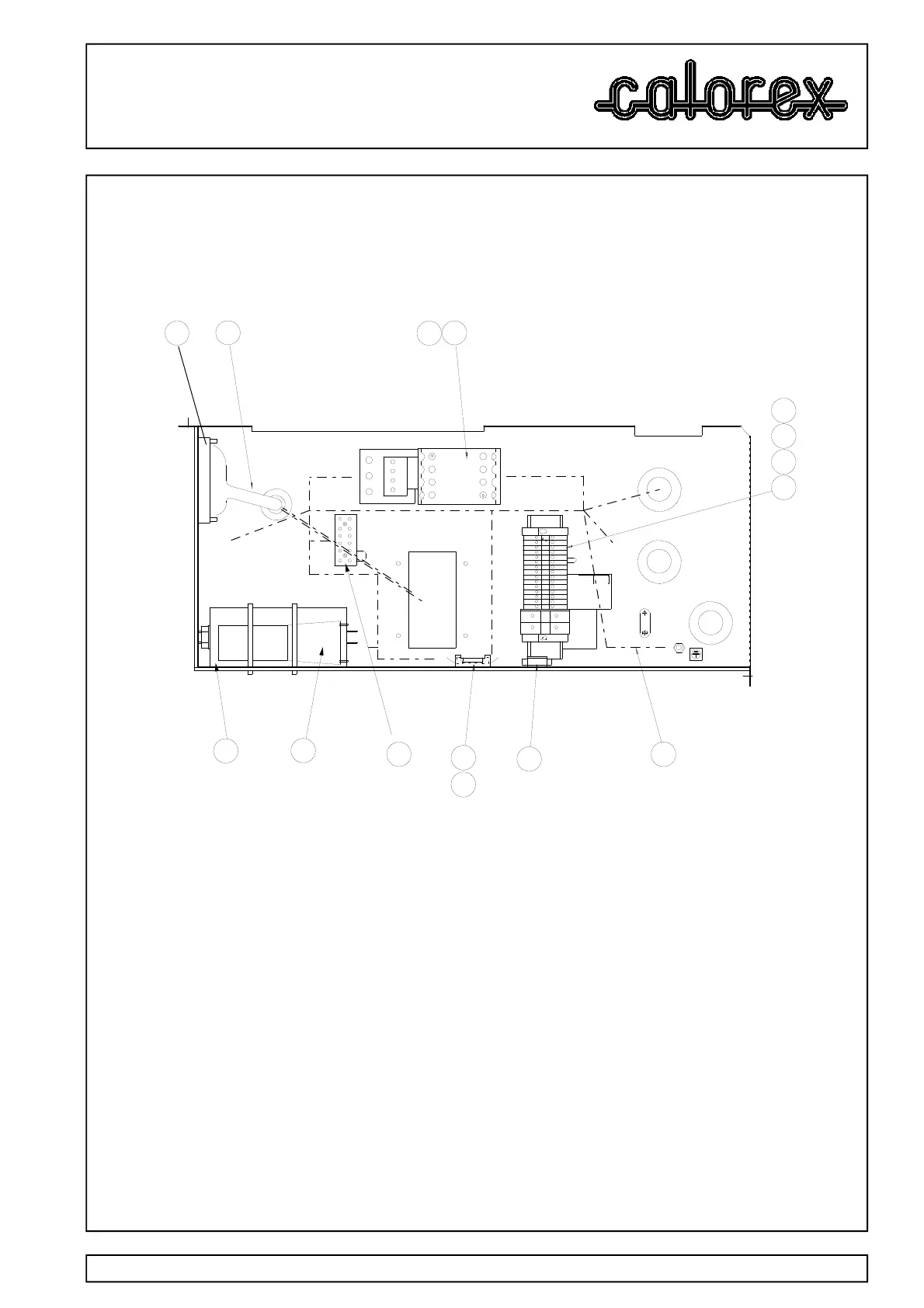
PART SECTION ON 'A-A'
ITEMS 3 & 4 NOT SHOWN
ELECTRIC BOX ASSY PPT16ALY(S)
3
4
12
10
9
10
8
35
34
31
5
7
36
6
15
2
2
37
EARTH BLOCK
1 3 5 13
2 4 6 14
NO
NO
A1 A2
2 4 6
98 97 96 95
NO NC
12131415
N
L
5 6 7 8 9
'Y'
VRSN
ONLY
REVERSING
VALVE
WATER FLOW
SWITCH
FAN CAP
FAN N
FAN L
161718 191011
ASSY No SA639110 AT ISS 1 (08/02/2013). ELECTRIC BOX ASSY PPT16ALY(S)
ITEM NO. PART No. DESCRIPTION QUAN UNITS
3 SD612053 CONTACTOR 25A 3+1N/O AUX 1 off
4 SD612459 CONTACTOR OVERLOAD 17-25A 1 off
5 SD406350 TERMINAL BLOCK WDU16 2 off
6 SD409350 TERM BLOCK WDU 2.5N 15 off
7 SD403950 END BRACKET (EW35) 8.5mm 2 off
8 SD486650 CAPACITOR FOR COMP 60uF 470V 1 off
9 SD216550 FUSE HOLDER 1 off
10 SD035350 FUSE 3A 2 off
12 SD609831 LOOM ASSY PPT16/22ALX(Y) 1 off
31 SD073150 CAPACITOR HARD START 1 off
34 SD630912 EARTH LOOM 1 off
35 SD296650 TERM BLOCK BRASS 8 WAY (EARTH) 1 off
36 SD403851 TERMINAL BLOCK BARRIER WAP 16-35 1 off
37 SD072650 TERMINAL BLOCK 6 WAY 1 off

Table of Contents

Other manuals for Calorex PPT12

Related product manuals