EasyManua.ls Logo

CVC 310 - Page 40

CVC 310
128 pages
Print Icon
To Next Page IconTo Next Page
To Next Page IconTo Next Page
To Previous Page IconTo Previous Page
To Previous Page IconTo Previous Page
Loading...
CVC TECHNOLOGIES, INC. CVC 310 OPERATION MANUAL
7 - 3
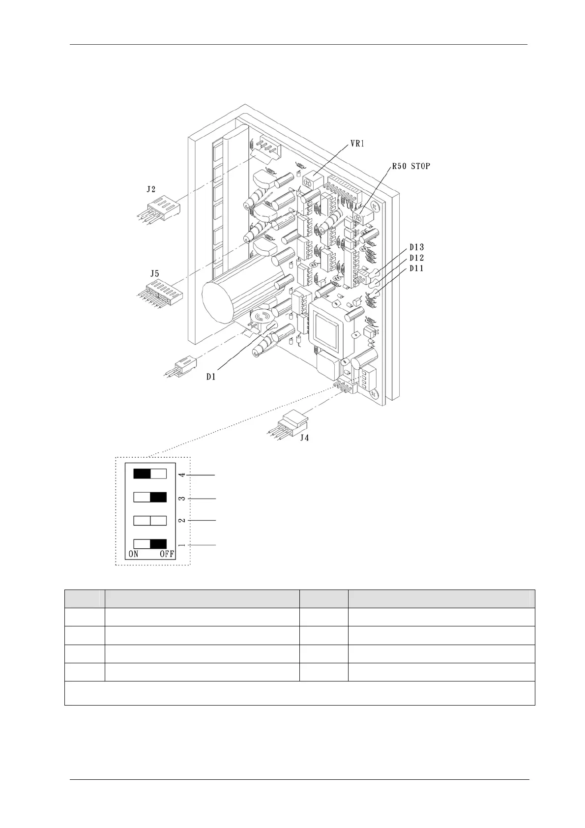
Stepper Motor Driver - Label Head
Item Description Item Description
JP2 Driver power DC 145V D1 DC 145 Power indicator
J2 Stepper motor output D11 Labeling signal indicator
J4 Power control for 5V/12V D12 Spare – for future use
J5 Signal input & energy saving mode D13 Power indicator
Fuse for stepper motor driver is located at side board. LED 37 is lit when F2 fuse is burned. Replace a new fuse and a new
stepper motor driver.
Fig
7.2-1
Dip Switch setting:
Left: Overheating protection
Spare – for future use.
Left: Single Label Head stepper motor revolution switch
Right: Half step motor switch: 0.9˚ revolution per signal.
JP2:Driver
p
ower DC 145V

Table of Contents

Related product manuals