EasyManua.ls Logo

DACE RT25/50 - Anchoring the Foundation Plate

DACE RT25/50
52 pages
Print Icon
To Next Page IconTo Next Page
To Next Page IconTo Next Page
To Previous Page IconTo Previous Page
To Previous Page IconTo Previous Page
Loading...
11
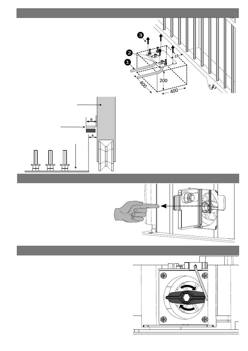
I. Lay a concrete slab 400mm x 400mm x 200mm:
Dig a hole and place the conduit ❶ in the correct
posion.
Fill the hole with concrete & allow to set.
II. Place the foundaon plate on the concrete slab &
feed the conduit through the cable inlets ❷.
III. Ensure a 23mm clearance between the inner
edge of the foundaon plate and the edge of the
gate. This measurement is based on DACE rack.
See below to calculate clearance if using other
rack.
IV. Aach the foundaon plate to the slab using four
8mm anchors ❸.
ANCHORING THE FOUNDATION PLATE
Open the ‘manual release door’ and pull the
release pin unl the lid is free. The Lid can now
be removed.
REMOVING THE LID
1. Open the ‘manual release door’ and rotate the thumb
wheel clockwise, just unl the gate begins to move.
2. The thumb wheel must not be allowed to rotate too far.
3. To re-engage the gearbox, rotate the thumb wheel
counter clockwise while pushing on the gate unl you
hear a click in the gearbox.
4. Do not rotate the thumb wheel any further aer hearing
the gearbox click.
PLACING THE OPERATOR IN MANUAL OVERRIDE
To calculate the clearance required between the edge of the
foundaon plate and the edge of the gate (A), measure the
width of the rack (B) and minus 9.
eg. If the width of the rack is 32mm less 9 = 23. Thus the
clearance required is 23mm
Side view
Gate
Rack
Foundaon
Plate

Table of Contents

Related product manuals