EasyManua.ls Logo

DACE RT25/50 - Control Board and Wiring; Tritek Control Board Layout; Overview of Power Connections & Fuses

DACE RT25/50
52 pages
Print Icon
To Next Page IconTo Next Page
To Next Page IconTo Next Page
To Previous Page IconTo Previous Page
To Previous Page IconTo Previous Page
Loading...
15
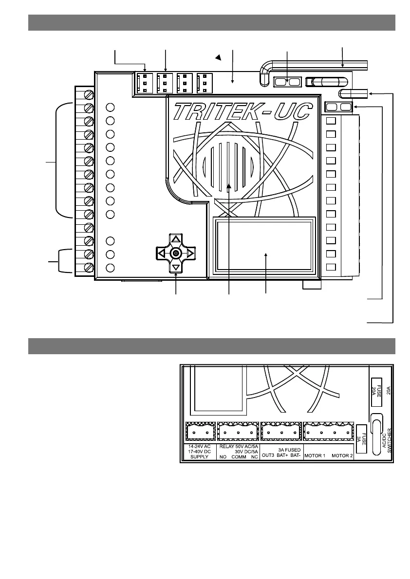
FUSE 20A: this fuse protects the motor in
the event of a short circuit or excessive
overload.
FUSE 3A: this fuse protects the auxiliary
baery output in the event of a short cir-
cuit or excessive overload.
MOTOR 1: this output is used to drive the
motor.
BAT-: this is the baery negave pole.
BAT+: this is a fused 3A auxiliary baery
output that is used for powering Electric &
Mag locks.
OUT3: this output must be connected to a Relay Module (SA001) for switching Pillar lights & Strobe warning
lights. Explore the LCD menus to adjust the many dierent opons available.
RELAY: this output is used for switching Electric or Mag locks.
SUPPLY: Connect 14V AC to 24V AC or unregulated solar power (max. of 40V DC). Minimum supply current
1.5A.
INPUT CONNECTIONS
OUTPUT
CONNECTIONS
MARKER
INPUT
GSM/WiFi
INPUT
20A FUSE
MOTOR
BATTERY VE
JOYSTICK LCD SPEAKER
REV COUNTER
INPUT
BATTERY +VE
12V - 24V
3A FUSE
BATTERY AUX OUTPUT
TRITEK CONTROL BOARD LAYOUT
OVERVIEW OF POWER CONNECTIONS & FUSES

Table of Contents

Related product manuals