EasyManua.ls Logo

Daewoo Novus M2SEF - Fuel System Diagram(de Engine); Fuel System Diagram(DV Engine); Fuel System Diagram(DDC Engine)

Daewoo Novus M2SEF
251 pages
Print Icon
To Next Page IconTo Next Page
To Next Page IconTo Next Page
To Previous Page IconTo Previous Page
To Previous Page IconTo Previous Page
Loading...
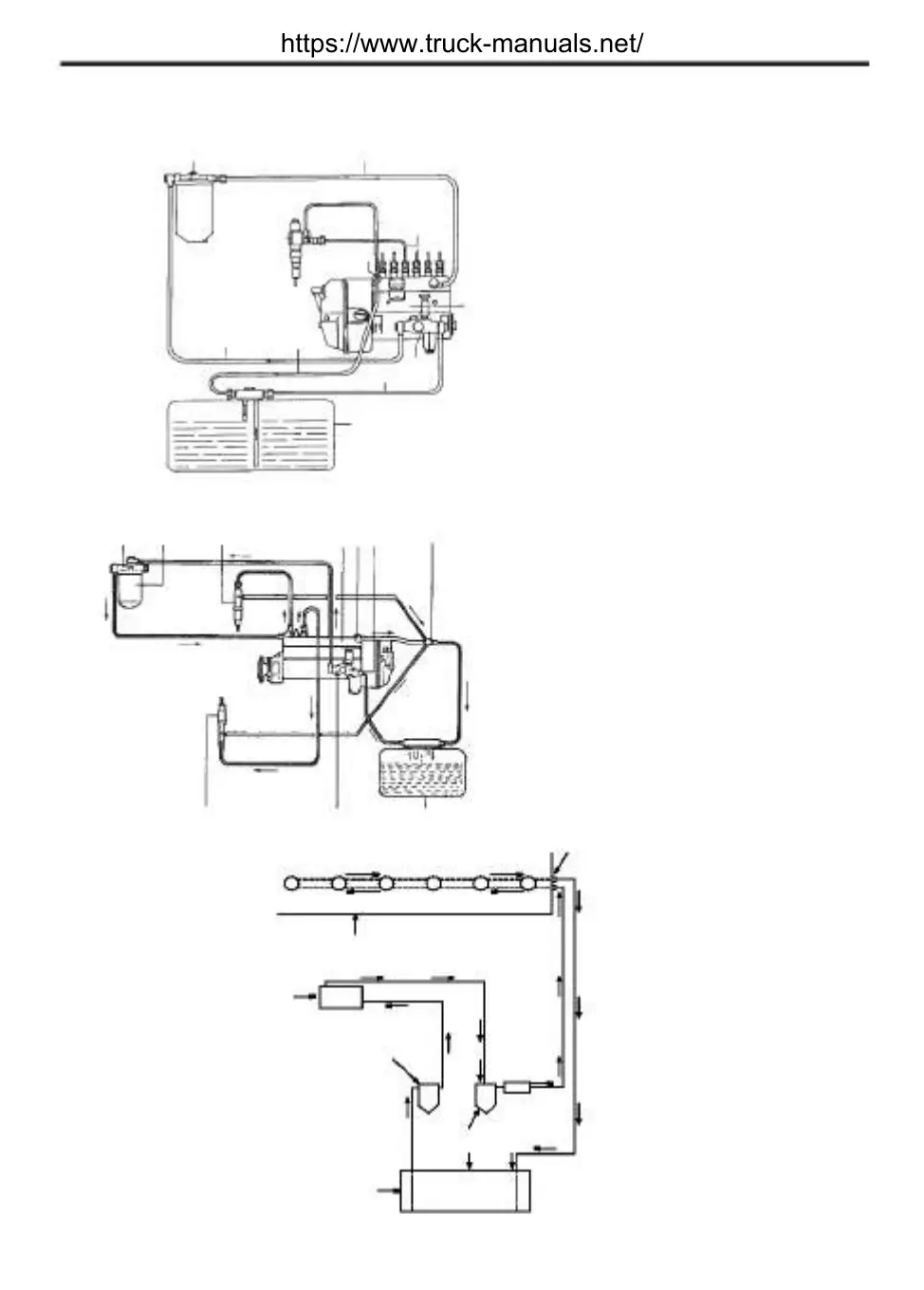
3-79 INSPECTION AND MAINTENANCE
Fuel system diagram(DE engine)
*
2
1
8
3
10
5
6
47
13
1. Fuel filter
2. Air bleeder screw
3. Injection nozzle
4. Fuel return pipe
5. Fuel feed pipe (filterpump)
6. Overflow valve
7. Injection pipe
8. Fuel feed pipe (pumpfilter)
9. Fuel tank
11 12
10. Fuel return pipe
11. Fuel suction pipe
9 12. Fuel feed pump
13. Injection pump
MDC0071
Fuel system diagram(DV engine)
*
4
3
6
6 572
9
1
8
MDC0072
1.
2.
3.
4.
5.
6.
7.
8.
9.
Fuel tank
Strainer
Fuel filter
Air bleeder screw
Injection pump
Injection nozzle
Relief valve
Fuel return pipe
Fuel feed pump
*
Fuel system diagram(DDC engine)
Cylinder head
Fuel pump
Primary fuel filter
Fuel
tank
Secondary
fuel filter
Restricted fitting
(Upper fitting)
MDC0073
https://www.truck-manuals.net/

Table of Contents

Related product manuals