EasyManua.ls Logo

Danfoss VLT AQUA Drive FC 202

Danfoss VLT AQUA Drive FC 202
228 pages
To Next Page IconTo Next Page
To Next Page IconTo Next Page
To Previous Page IconTo Previous Page
To Previous Page IconTo Previous Page
Loading...
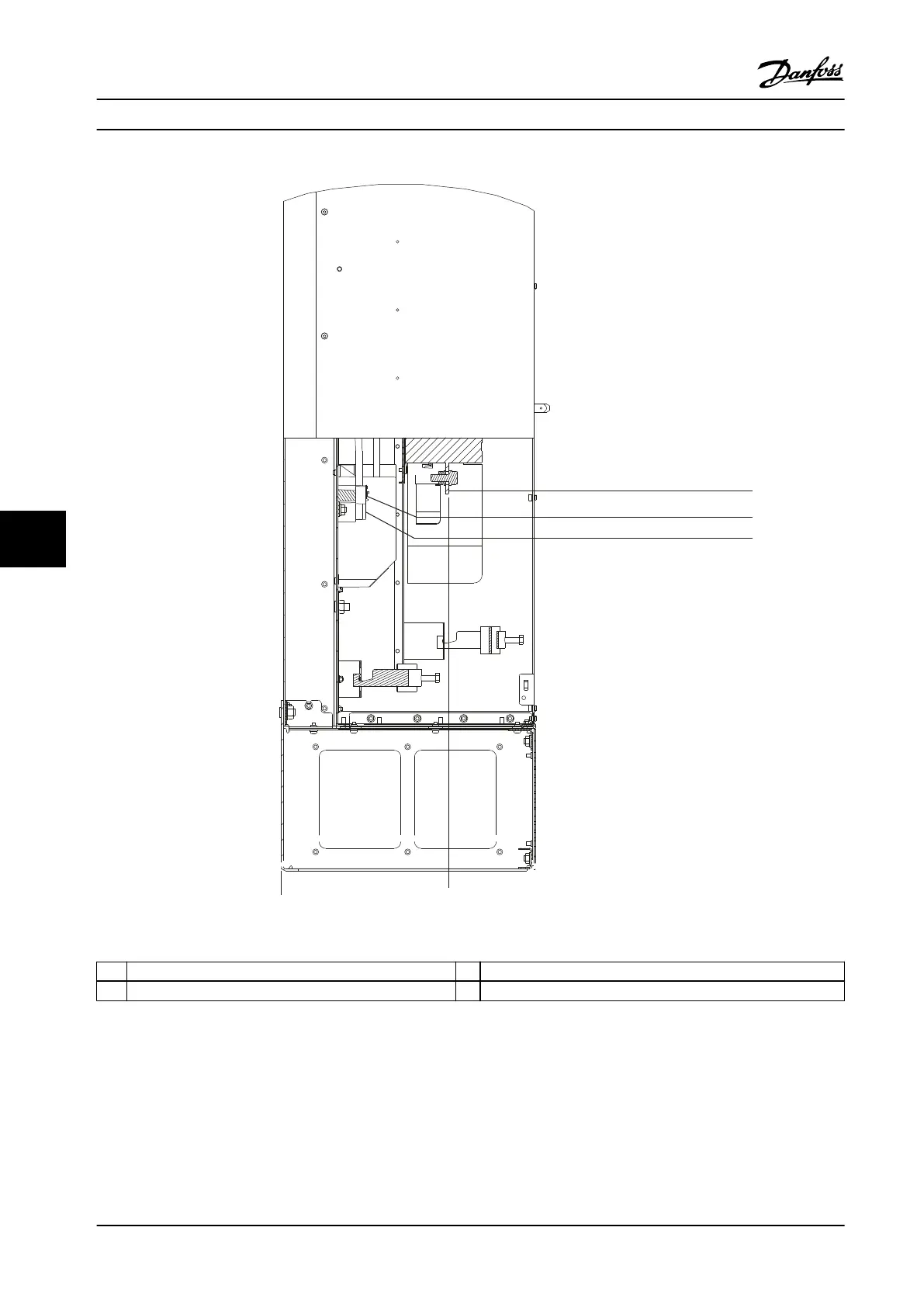
130BF370.10
246 (9.7)
0.0
1
2
3
1 Mains terminals 3 Motor terminals
2 Brake terminals
Figure 8.67 D8h Terminal Dimensions with Contactor and Disconnect Options (Side View)
Exterior and Terminal Dimen...
VLT
®
AQUA Drive FC 202
120 Danfoss A/S © 01/2018 All rights reserved. MG22B222
88

Table of Contents

Other manuals for Danfoss VLT AQUA Drive FC 202

Related product manuals