EasyManua.ls Logo

Danfoss VLT AQUA Drive FC 202 - Page 81

Danfoss VLT AQUA Drive FC 202
228 pages
Print Icon
To Next Page IconTo Next Page
To Next Page IconTo Next Page
To Previous Page IconTo Previous Page
To Previous Page IconTo Previous Page
Loading...
5
4
6
7
91 (3.6)
13 (0.5)
200 (7.9)
259 (10.2)
3X M10X20
0
0
M10
19 (0.8)
38 (1.5)
255 (10.0)
306 (12.1)
284 (11.2)
130BF348.10
0.0
0.0
3
2
1
M10
22 (0.9)
35 (1.4)
15 (0.6)
18 (0.7)
M10
16 (0.6)
32 (1.3)
19 (0.7)
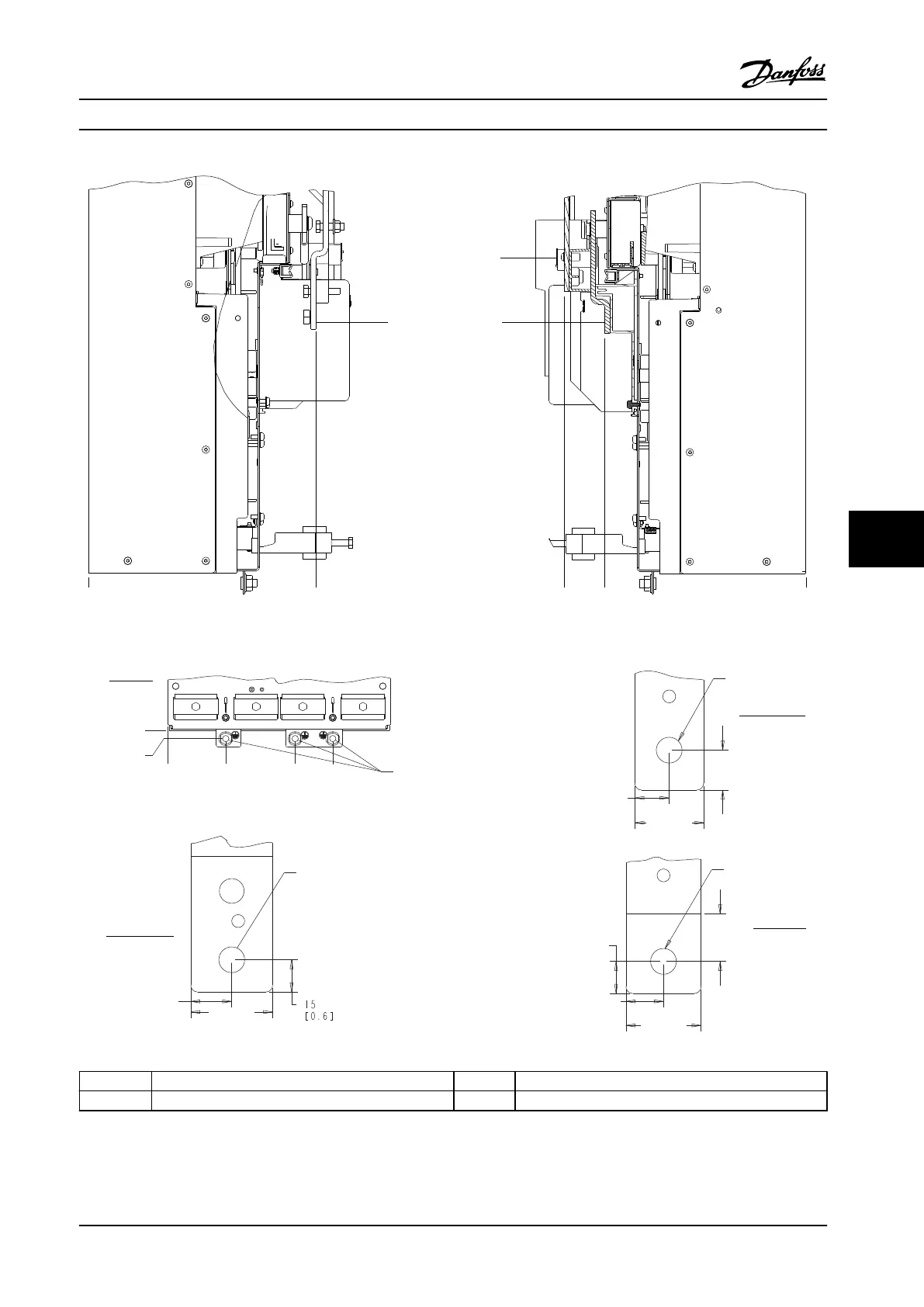
1 and 6 Brake/regeneration terminals 3 and 5 Mains terminals
2 and 7 Motor terminals 4 Ground terminals
Figure 8.24 D4h Terminal Dimensions(Side Views)
Exterior and Terminal Dimen... Design Guide
MG22B222 Danfoss A/S © 01/2018 All rights reserved. 79
8 8

Table of Contents

Other manuals for Danfoss VLT AQUA Drive FC 202

Related product manuals