EasyManua.ls Logo

dolycon CT100 Series - Page 18

dolycon CT100 Series
163 pages
Print Icon
To Next Page IconTo Next Page
To Next Page IconTo Next Page
To Previous Page IconTo Previous Page
To Previous Page IconTo Previous Page
Loading...
CT100 series inverters Product overview
14
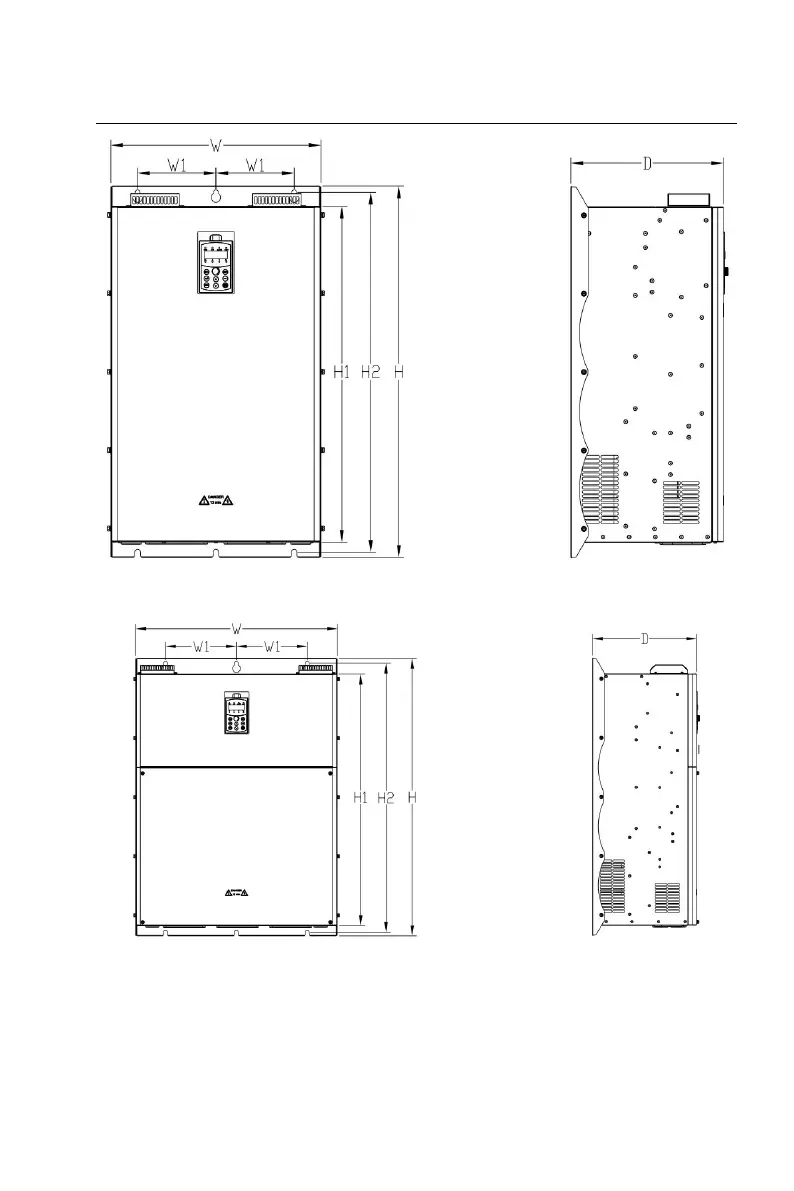
c) CT100-4T-132G/160PCT100-4T-200G/220P
d) CT100-4T-220G/250PCT100-4T-315G/355P

Table of Contents

Related product manuals