EasyManua.ls Logo

Dynojet Dynoware RT - Page 56

Dynojet Dynoware RT
88 pages
Print Icon
To Next Page IconTo Next Page
To Next Page IconTo Next Page
To Previous Page IconTo Previous Page
To Previous Page IconTo Previous Page
Loading...
CHAPTER 3
Cable Routing
DynoWare RT Upgrade for Model 424x Dynamometers Installation Guide
3-22
4 For dynos with the Linx option:
4a Strip a 1/4-inch of the housing off the wires.
4b Attach the butt connector from the relay 85 to the green brake signal wire.
4c Attach the butt connector from the relay 86 to the white brake signal wire.
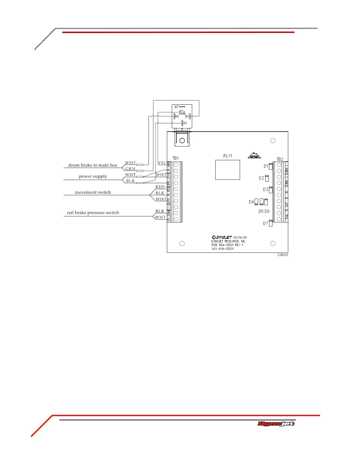
Figure 3-18: 4WD Movement Board—Connect Speed Pickup/Brake Wires with Linx Option
5 Place the speed pickup/brake cable (F) from the 4WD dyno in the cable track.
6 Attach the CAN control cable (K) to the eddy current brake driver on the 4WD
dyno.
7 Place the CAN control cable (K) from the 4WD dyno in the cable track.
8 Close the crossbars on the cable track links.
9 Route the cable track back underneath the dyno.
10 Secure the cable track to the front rail tie assembly using two 1/4-20 x 1-inch hex-
head screws and two washers.
11 On the stationary dyno, locate the two black brake solenoid leads. These wires
were disconnected from the Breakout board earlier.
12 Clip the ferrules off the brake solenoid leads, strip a 1/4-inch of the wire and
crimp one of the sockets (P/N 44359120) onto each wire.
13 Insert the sockets into the housing (P/N 44329902). The position of the sockets in
the housing is not critical.
14 Attach the two-pin connector on the speed pickup/brake cable (F) to the
connector on the brake solenoid wires.
15 If not already done, attach the three-pin connector on the speed pickup/brake
cable (F) to the speed pickup card installed on the eddy current brake.

Table of Contents

Related product manuals