EasyManua.ls Logo

elco TRIGON L PLUS - Cascade

elco TRIGON L PLUS
108 pages
Print Icon
To Next Page IconTo Next Page
To Next Page IconTo Next Page
To Previous Page IconTo Previous Page
To Previous Page IconTo Previous Page
Loading...
11
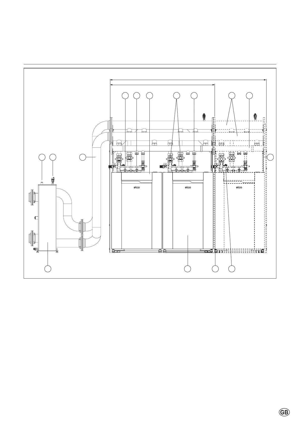
Product description
TRIGON L PLUS Cascade
Legend:
1. Air supply
2. Flue/Air supply
3. Cascade manager
Accessories:
4. Gas isolation valve
5. Servicevalvesowandreturn
6. Non-return valve
7. Flow/return header
8. Gas line
9. Low loss header
10.Safetyvalve3or6bar
11. Fill and drain valve
12. Automatic air vent low loss header
13. Pocket for temperature sensor T10
14. Frame
15. LLH connection pipe LEFT or
RIGHT side*
*Lowlossheadercanbeinstalledonleft
or right side of the cascade using proper
left or right connection pipe kit.
Cascade possibilities
The ELCO TRIGON L PLUS cascade
canbemountedin2ways:
- Floor-standing in line
Allboilersstandingalongsideone
another.
- Floor-standing back-to-back
Allboilersstandingback-to-back
69 11
1213
2140
1440
10
15 14
5 7
1 2 3 4 8

Table of Contents

Related product manuals