EasyManua.ls Logo

elco TRIGON L PLUS - Wiring Diagram

elco TRIGON L PLUS
108 pages
Print Icon
To Next Page IconTo Next Page
To Next Page IconTo Next Page
To Previous Page IconTo Previous Page
To Previous Page IconTo Previous Page
Loading...
48
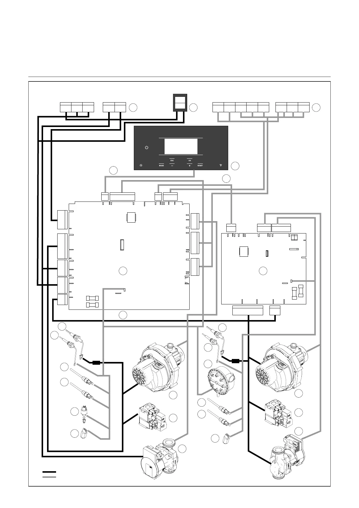
CN20
HMI
communication
to slave PCB
M01-M02
MTS1-2-3
CN11
VFR1
PWM
FAN
PWM
PUMP
PFDIN1
PFDIN3
PFDIN2
PFDIN1
PFDIN4
EBUS
Wi-fi
OUTDOOR
TANK
SENSOR
VFR2
VFR3
FAN
GAS VALVE
BOILER PUMP HV
P2/DV1
M01
POWER SUPPLY
High voltage
Low voltage
LI1
IGNITOR
CN15
1
1
CN25
CN18
CN16
CN13
CN9
CN7
CN19
CN21
PC Service Tool
Memory Key
Flame Sensor
PE
F4
F1
CN8
CN12
CN23
1
1
1
1
CN6 CN22 CN17 CN14
1
6 4
1
1
1
1
1
3
1 1 1
CN14
CN6
CN18
CN5
F3
F2
CN2
CN17
CN16
1
1
1
3
1
1
CN11
1
CN3
1
CN1
CN9
CN12
CN17
CN10
1
1
1
4
6
PC Service Tool
Flame
Sensor
PE
POWER
SUPPLY
WV/DHW
PUMP
M01
HV
3 3 3
M02 PFDIN
1-2-3-4
PFDIN1
6 6 6
M01 MTS
1-2-3
NTC
3
NTC
7
eBUS
3 6 4 2 2
VFR
1-2-3
4 6
SWITCH
I
0
A2
F5
AB2
A
A11
3
12 2
AB1
B
A1
A3
A4
A9
A5
A8
A7
A6
B2
B1
A10
B3
B4
B5
B7
B6
B8
F6
Installation
Electrical connection
Wiring diagram

Table of Contents

Related product manuals