EasyManua.ls Logo

Fire-Lite MS-9050UD - Page 193

Fire-Lite MS-9050UD
220 pages
Print Icon
To Next Page IconTo Next Page
To Next Page IconTo Next Page
To Previous Page IconTo Previous Page
To Previous Page IconTo Previous Page
Loading...
MS-9050 Series Manual — P/N 52413:F 10/22/2010 193
NFPA Standard-Specific Requirements
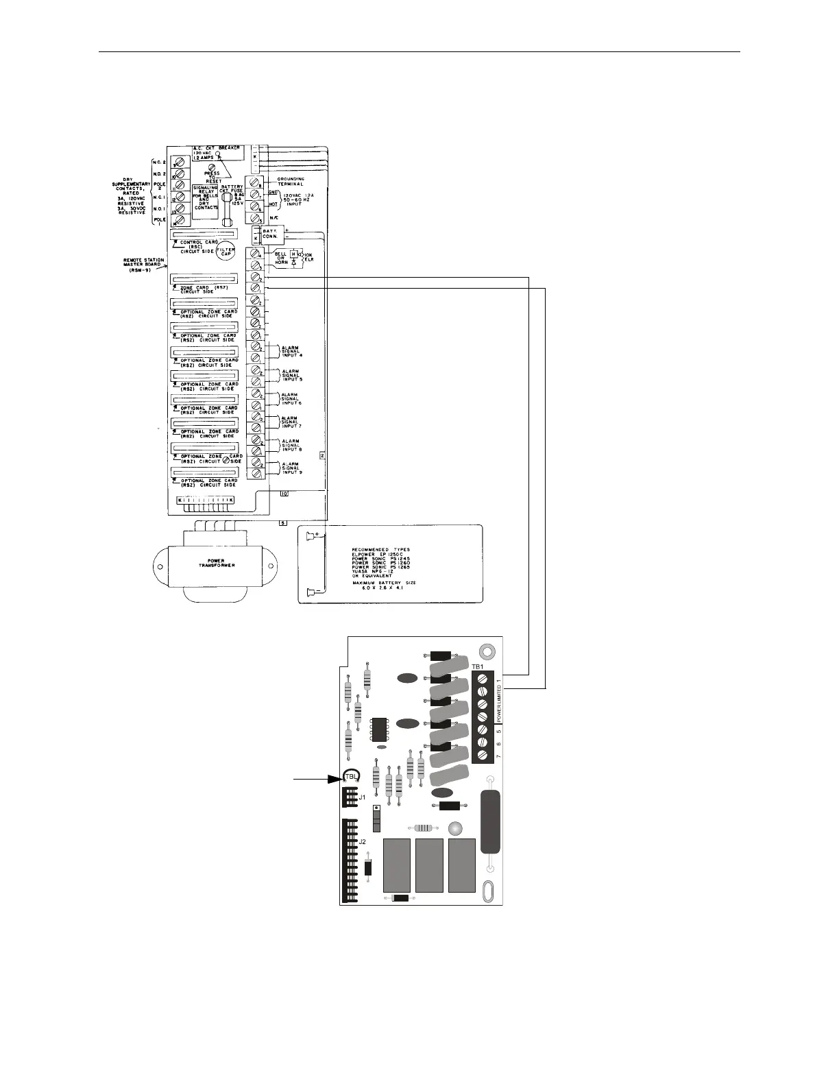
1. Cut Jumper JP28 on the MS-9050UD main circuit board to supervise placement of the 4XTMF
module.
2. Refer to “4XTMF Transmitter Module Installation” on page 33 for detailed information.
RS82 Remote Station Receiver UL listed.
Refer to Instruction Manual for Remote Station Receiver Model RS82.
+ -
Polarity Shown is
Normal Standby
4XTMF Transmitter Module
Cutting TBL Jumper allows the
reverse polarity circuit to open
with a system trouble condition
if no alarm condition exists.
Power-limited
Figure C.2 Remote Station Connection Using 4XTMF Module
+
-
(Dummy load with a 4.7K, ¼ watt
resistor when no connection is made.)

Table of Contents

Other manuals for Fire-Lite MS-9050UD

Related product manuals