EasyManua.ls Logo

GE VersaMax - Available VersaMax CPUs; CPU Models; CPU Diagrams

GE VersaMax
504 pages
Print Icon
To Next Page IconTo Next Page
To Next Page IconTo Next Page
To Previous Page IconTo Previous Page
To Previous Page IconTo Previous Page
Loading...
GFK-1504K Chapter 1 Introduction 1-5
1
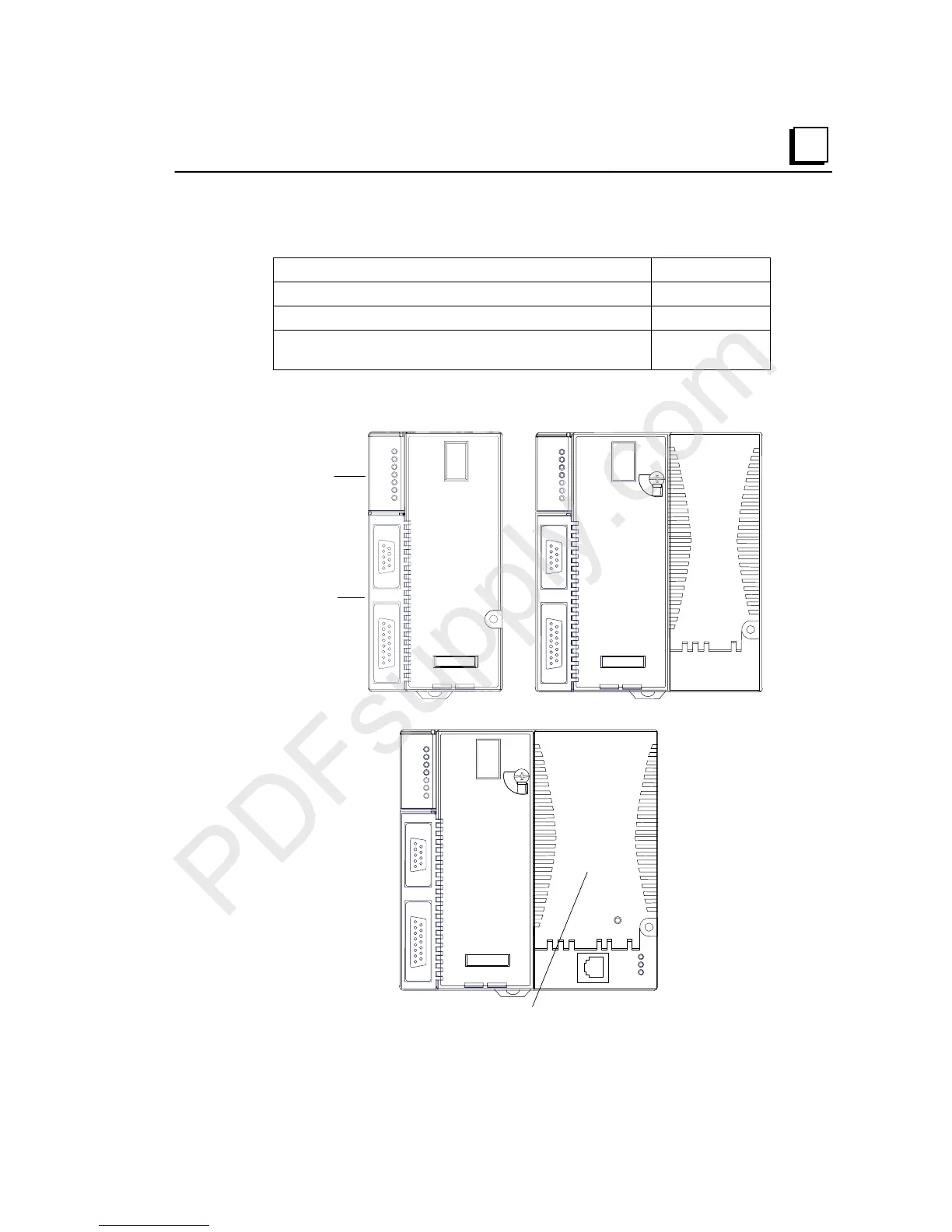
Available VersaMax CPUs
CPU with Two Serial Ports, 34kB of Configurable Memory IC200CPU001
CPU with Two Serial Ports, 42kB of Configurable Memory IC200CPU002
CPU with Two Serial Ports, 64kB of Configurable Memory IC200CPU005
CPU with Two Serial Ports and Embedded Ethernet Interface,
64kB of Configurable Memory
IC200CPUE05
RS485
PORT 2
RS232
PORT 1
CPU001
PORT 2
FORCE
PORT 1
FAULT
RUN
PWR
OK
RS485
PORT 2
RS232
PORT 1
CPU005
FAULT
RUN
PWR
OK
PORT 2
FORCE
PORT 1
CPU001
CPU002
CPU005
Status LEDs
Serial Ports
RS485
PORT 2
RS232
PORT 1
CPUE05
FAULT
RUN
PWR
OK
PORT 2
FORCE
PORT 1
PORT 1
LAN
STAT
ETHERNET
10 BASE T /
100 BASE TX
ETHERNET
RESTART
CPUE05
Ethernet Interface
PDFsupply.com

Table of Contents

Related product manuals