EasyManua.ls Logo

golmar Nexa - Description of the Tekna R5 Monitor; Labelling and Function Push Buttons

golmar Nexa
164 pages
Print Icon
To Next Page IconTo Next Page
To Next Page IconTo Next Page
To Previous Page IconTo Previous Page
To Previous Page IconTo Previous Page
Loading...
lk
m
a.
b.
c.
d.
e.
f .
g.
h.
i .
j .
k.
l .
m.
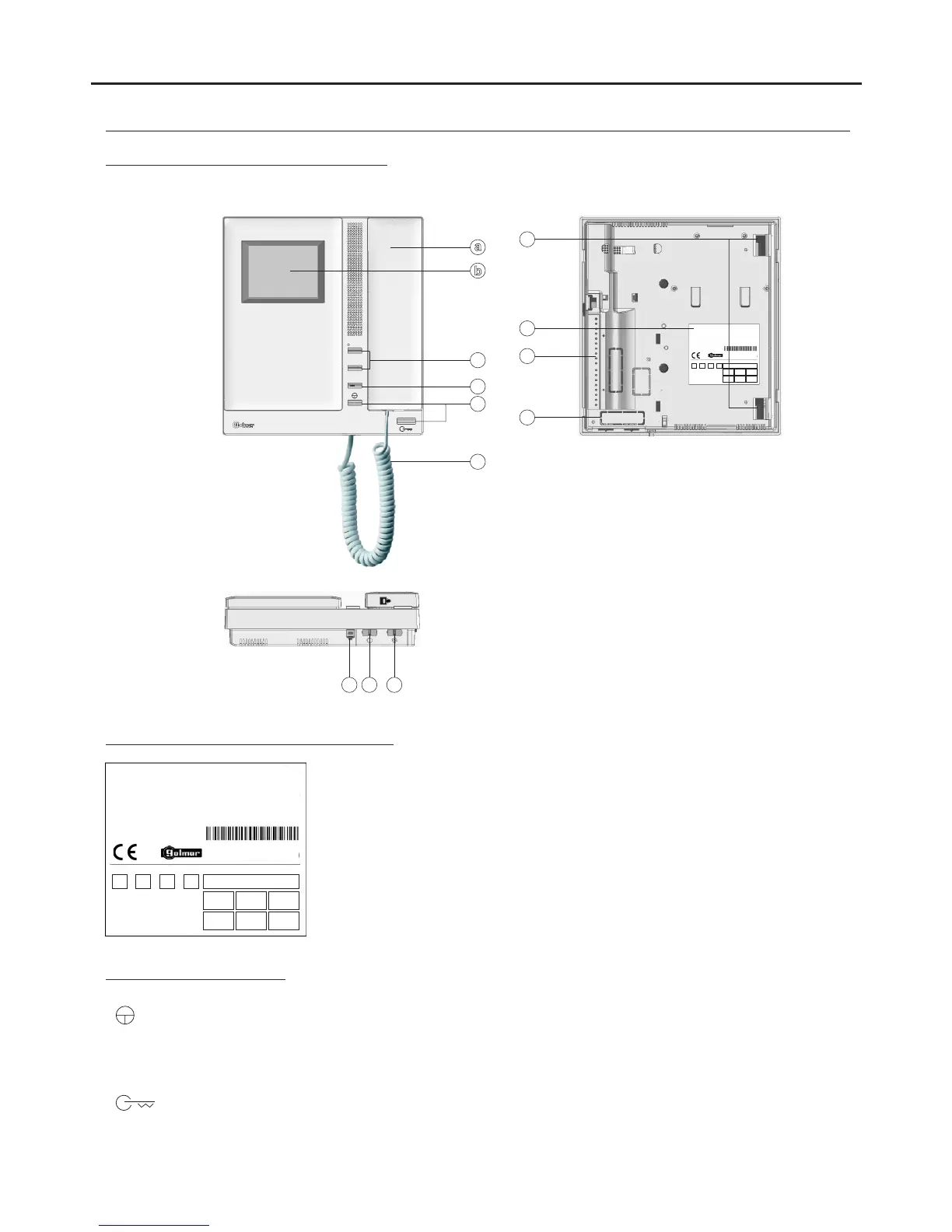
Handset.
Colour screen.
Inoperative push buttons.
On-Off light indicator.
Function push buttons.
Telephone cord.
Connector fixings.
Identification label.
Connector connection points.
CN2 connector.
.Cord connector
Colour control.
Brightness control.
a
b
f
e
c
d
151
Description of the Tekna R5 monitor:
DESCRIPTION OF THE MONITOR
Description of the identification label:
To facilitate repair, replacement or the addition of monitors to the existing
installation, fill in the label with the relevant information.
MASTER: l.Main monitor
SLAVE: .Secondary monitor
INTER: .Not used
A1: .Not used
CODE: .Call button code
STAIR: .Not used
With the handset hung up, the image from the master door panel can be viewed. With the handset off the hook,
audio and video communication can be established with the door panel if it has its auto switch-on function
activated. This only functions if no communication is in progress.
With the handset hung up, hold pressed for 1 second to turn the monitor on or off. For a period of 45 seconds
after the monitor is turned on, it will only be able to receive calls.
With the handset off the hook, a call can be made to the main guard unit. During call reception and
communication processes, the door release can be activated.
Function push buttons:
AUDIO AND VIDEO DOOR ENTRY SYSTEM - CODED PANEL WITH DISPLAY
g
j
i
h
00000000000
v.xx
MASTERINTER A1 SLAVE CODE
ESCALERA
STAIR
PISO
FLOOR
PUERTA
DOOR
ATENCIÓN
Alta tensión. No abrir la tapa.
Manipular sólo por personal
del servicio técnico.
WARNING
High voltage. Don't open cover.
Handle only by technical service.
SN
CODE
REF.
TEKNA R5 COL SU-R5
11742 05 4A
00000000000
v.xx
MASTERINTER A1 SLAVE CODE
ESCALERA
STAIR
PISO
FLOOR
PUERTA
DOOR
ATENCIÓN
Alta tensión. No abrir la tapa.
Manipular sólo por personal
del servicio técnico.
WARNING
High voltage. Don't open cover.
Handle only by technical service.
SN
CODE
REF.
TEKNA R5 COL SU-R5
11742 05 4A

Table of Contents

Other manuals for golmar Nexa

Related product manuals