EasyManua.ls Logo

Honeywell FMC2000 - Drilling Chart

Honeywell FMC2000
112 pages
Print Icon
To Next Page IconTo Next Page
To Next Page IconTo Next Page
To Previous Page IconTo Previous Page
To Previous Page IconTo Previous Page
Loading...
FMC2000 User’s Guide
4. Ensure the shafts of the mounting plate’s studs rest firmly in
the narrow end of the keyhole-shaped captures, and then let
the bracket fully bear the weight of the FMC2000.
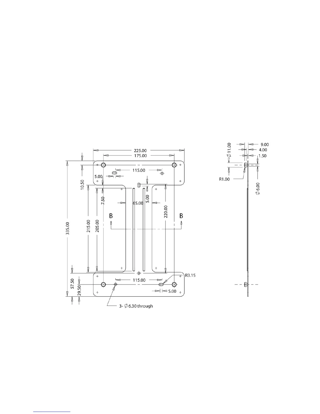
4.3 Drilling Chart
When mounting the FMC2000 on a wall, make sure to use heavy-
duty steel screws spaced as indicated below.
Note: All dimensions are in millimeters.
12

Table of Contents

Related product manuals