EasyManua.ls Logo

HP ProLiant DL380 Gen9 - Page 101

HP ProLiant DL380 Gen9
215 pages
To Next Page IconTo Next Page
To Next Page IconTo Next Page
To Previous Page IconTo Previous Page
To Previous Page IconTo Previous Page
Loading...
Hardware options installation 101
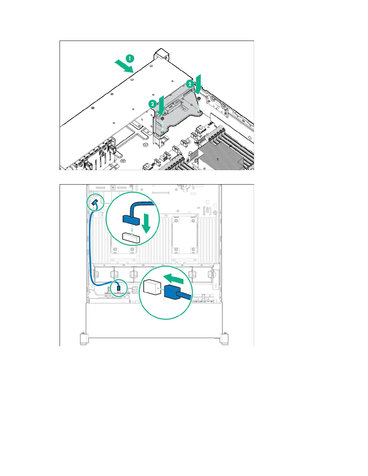
9.
Install the universal media bay.
10. Connect the power cable.
11. Connect the data cable in one of the following two configurations:

Table of Contents

Other manuals for HP ProLiant DL380 Gen9

Related product manuals