EasyManua.ls Logo

Immergas VICTRIX TERA V2 35 PLUS EU - Page 56

Immergas VICTRIX TERA V2 35 PLUS EU
124 pages
Print Icon
To Next Page IconTo Next Page
To Next Page IconTo Next Page
To Previous Page IconTo Previous Page
To Previous Page IconTo Previous Page
Loading...
56
INSTALLERUSERMAINTENANCE TECHNICIANTECHNICAL DATA
C
10
- C
12
1
4
7
9
5
5
3
2
S
10
6
7
8
A
6
7
A
A
C12
C10
41
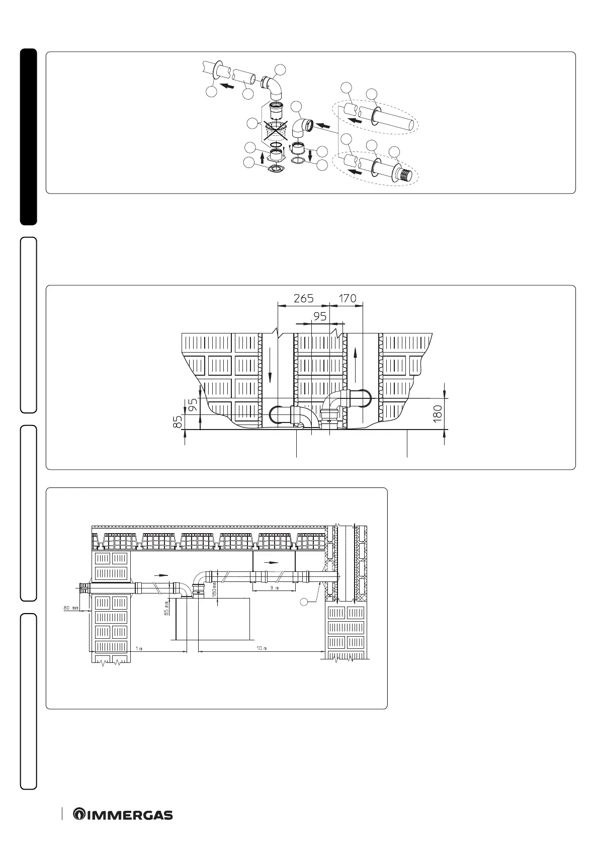
e kit includes (Fig. 41):
No.1 Exhaust gasket (1)
No.1 Flange gasket (2)
No.1 Female intake ange (3)
No.1 Female exhaust ange (4)
No.2 Bend 90° Ø 80 (5)
No.1 Extension Ø 80 (6) (C10 only)
No.1 Intake terminal Ø 80 (6) (C12 only)
No.2 Internal wall sealing plates (7)
1 External wall sealing plate (8) (C12 only)
No.1 Exhaust pipe Ø 80 (9)
N°1 Non-return valve on ue gas Ø 80) (10)
N.B.: remove extension Ø 125
C
10
42
C
12
C
A
S
43
Key (Fig. 43):
A - Intake
C - Minimum slope 5%
S - Exhaust

Table of Contents

Related product manuals