EasyManua.ls Logo

Keysight Technologies E8257D - Page 164

Keysight Technologies E8257D
417 pages
Print Icon
To Next Page IconTo Next Page
To Next Page IconTo Next Page
To Previous Page IconTo Previous Page
To Previous Page IconTo Previous Page
Loading...
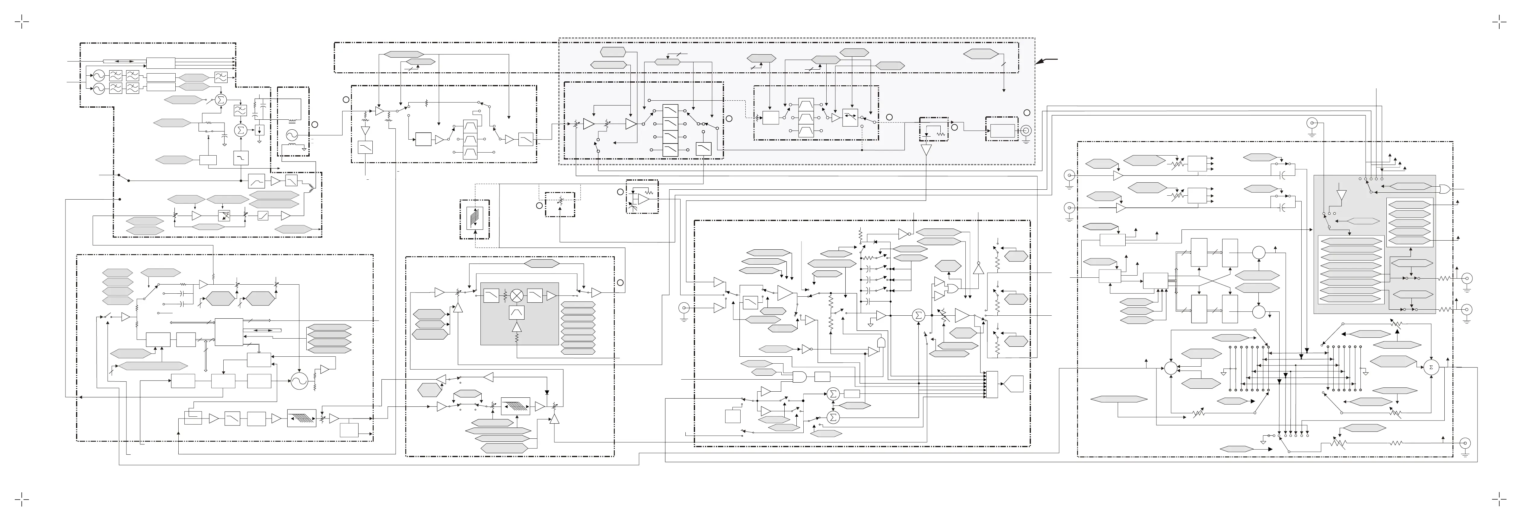
57d_rf-path
Block Diagram for the Analog RF Path, Service Guide E8251-90359
Audio 1
Audio 2
External 1
External 2
F_GEN1
F_GEN2
FM1_MUX
FM2_MUX
MOD_MUX
AM1_MUX
AM2_MUX
FM_OFFSET2
_DAC
FM2_SCALE_DAC
LF_OUT_DAC
AM1_DAC
AM2_DAC
LFO
Front Panel
A Bus
A Bus
A Bus
FM
AM
-
+
-
+
+
+
AM
FM
50 ohm
AM_OFFSET
_DAC
-
VIDEO_OUT_EN_L
RED_PULSE_SEL
RED_VREF_DAC
PULSE_ED_SEL
FED_PULSE_SEL
FED_VREF_DAC
SYNC_OUT_EN_L
PULSE IN SEL
Sync Out
Ext ALC
Front
Panel
Gate / Pulse /
Trigger Input,
Front Panel
PULSE_OUT_SEL
Internal Pulse Generator
_
+
Vref
A Bus
A Bus
A Bus
L Pulsed
RF Off
50 ohm
PG_PULSE_REP_INTERVAL
PG_MODE
PG_TRIGGER_INVERT
PG_VIDEO_BEGIN
PG_PULSE_REP_INTERVAL
PG_VIDEO_END
PG_SYNC_BEGIN
PG_SYNC_END
Video Out
A Bus
50 ohm
A Bus
A Bus
A Bus
A11 Pulse / Analog Modulation Generator
F_Gen 1
External 1
External 2
F_Gen 2
A23 Low Band
Coupler / Detector
0-2 GHz
H_Speedup Enable
V_GHZ_DAC
A9 YIG Driver
Sweep Out
Rear Panel
(0-10v)
FM
Coil
FM_ATTEN_L
FM_ATTEN_H
FM_GAIN_DAC
FM_FREQ_COMP
FM_FREQ_COMP_L
FM_ATTEN
FM_FREQ_COMP_H
800k
230: :1k
: :
:
:4k
+32 V
Main
Coil
LYO Loop
Hold 1
2k
230
Pretune
Speedup
Ramp
Sweep
YIG Pre-tune DAC
Sweep Control
Sweep_DAC
Delay_Coupler DAC
Sweep_DAC
Programmerable
Counter
Programmerable
Counter
YIG
J1
Retrace (Rear Pnl)
Z-axis / Blanking (Rear Pnl)
Stop Sweep (Rear Pnl)
Sweep Level (to A10)
(cw)
sweep=
0V
3.2-10V
J4
from A5
J9
from A6
J3
from A6
Ramp Swp
10MHz
Ref
100Hz
to / from
A6
(cw)
FGEN1_OFFSET_
DAC
FGEN2_OFFSET_
DAC
-
-
-
-
S
S
S
33.554 MHz
NS Clock
10 MHz
CNTOUT
NSCLK_ON_H
NSCLK Out
of Lock L
"Elsie" NS
OCA
ODBUS
OCC
NS_CLK
NS_Reset
NS_Address
NS_Data
ABUS
NSCLK
TUNE
100 MHZ IPG
Clock
10 MHz
IPGCLK_ON_H
IPGCLK Out
of Lock L
IPG_CLK
ABUS
IPGCLK
TUNE
10 MHz
Digital
Data
Latch
Clock
Data
DAC
Clock
Latch
Data
Clock
DAC
Data
Clock
12
12
12
12
EXT1_50_
OHMS_H
Rin = 600
or 50 ohms
Ext 1,
Front
Panel
Peak
Detect
EXT1_PEAK_V
REF_DAC
A bus
Ext1_High_H
Ext1_low_H
-10Vref
EXT2_50_
OHMS_H
Rin = 600
or 50 ohms
Ext 2,
Front
Panel
Peak
Detect
EXT1_PEAK_V
REF_DAC
A bus
Ext2_High_H
Ext2_low_H
-10Vref
X2
X2
EXT2_AC_H
EXT1_AC_H
A12 Option
UNW
Pulse Mod
Exponential
Modulation Driver
L_20MOD
_OFF
L_20/
H_40DIG
ALCMOD_LIN_DAC
ALCMOD_BIAS_DAC
_
+
H_RF_OFF
H_SM_MODE
-10v
_
+
L Unlvl
Interrupt
+66mV/dB
Det level
SM Input
Open =
Hold
3.2 to 20 GHz
ALC Mod
Loband
ALC Mod
A10 ALC
ALC
FeedFwd
L_ALC_HOLD_LATCHED
ADC
ADC
MUX
_
+
ALC_BW_SEL
L_OPENLOOP
Int Out
+10dB/V
+V
all open = 0
1
2
3
Cx1000
Cx100
Cx10
C
6.8 volts
SOURCE_SETTLED_H
FM_OFF_H
+V
_
+
H_DEEP_AM
L Pulsed RF Off
AM Input
ALC Ref -66mV/dBm
Deep
AM
Comp
_
+
Log
I/H
Delay
Burst
Comp
H_EXP_AM
L ALC Hold
L_Open Loop
H_LIN_AM
H_BURST
LVL_DAC
Delay
H_BELOW_3.2GHZ
ALCMODGAIN_DAC
Dual Slope Log Amp
HIPWRCAL_DAC
LOG_BRKPT_DAC
DET_OFS_DAC
H_DET_LPF
1 kHz
Hiband
Detector
Loband
Detector
External
Detector
0
1
2
DETECTOR_SEL
L_DETLVLX25
x 25
Timing
Signal
Gen.
27.778kHz
Sweep Level
from A10 ALC
and A5 Sampler
J3
250 kHz - 20 GHz
10-20 GHz
J1
J3
ALC
Pulse
A30 Modulator
Filter
5-8
13-20
8-13
3-5
10-20
3.2
A26 Micro Interface Deck
X2
Doubler
3-10
10-20
5-10
3-20
Limiter
3-10
3-10
3-10
A29 20 GHz Doubler
750 MHz
16-20
13-16
10-13
to
A5 Sampler
3.2 - 10 GHz
> -7 dBm
3.2 - 10 GHz
> -7 dBm
>3.2 -
20 GHz
A27 40 GHz Doubler
Doubler
30 or 40
0-20
GHz
20-40
GHz
20-26
32-40
26-32
X2
DBL40_PATH
3
J2
ATTEN
5
Models up to 40 GHz.
See next sheet for
models over 40 Ghz.
Optional
Attenuator
5/10/40/20/40
RF
Out
AT1
Option 1E1
Attenuator
DBL40_AMP
DBL40_LPF
DBL40_BIAS
2
DBL20_AMP_ON_H
DBL20_PATH
6
0-3.2 GHz
1 GHz
Ref
MOD_
OFFSET_DAC
MODLIN_DAC
MOD_DRIVER_
BIAS/GAIN_DAC
Pulse
from
A7 Reference
250 Mhz to 3.2 GHz
HET_SELECT_L
850 to
1150
MHz
6 dB
3 dB
< 250 MHZ
A8 Output
Gain
Adj
250 MHz
to 4 GHz
Bypass Mode Prelevel Detector
Pre-Level Driver
ALC
Mod
GAIN_ADJUST_DAC
ALC_MOD_DRIVER_
BIAS/GAIN_DAC
OUTPUT_LP_FILTER_SELECT
ALC_MOD_OFFSET_DAC
H_BYPASS
PRE_
LEVEL_
REF_DAC
ALC
L_EN_LIN/LOG
L_RF_OFF_MOD
BB_FILTERED
MOD_L_BW
H_BYPASS
BB_THRU
L_MODE
L_HOLD_ALC
1200 MHz
400 MHz
from
A9
Yig Driver
J4
Sweep Start / Stop
J4
Reference Input
10 MHz TCXO
Atten &
Offset
FM
Data I/O
Reclocked
VCO/N
7
YTO_FM
H_FM_INV
H_SD_FM
L_SD_OFF
L_FM_OFF
MOD_CONTROL
1 MHz PM
0.1 MHz PM
Z
o
Σ∆
Mod
Control
5
Frac-N
Prescaler
Control
A6 Frac-N (Fine Tune)
Source Settled
Indicators
7
FM_OUT_
BAND_
DAC
9
ATTEN_
CONTROL
5
Control
2
3
16
16
FM
FM
SOURCE_SETTLED_H
from
A11 Pulse / Analog
Modulation Generator
J1
from
A7 Reference
FM_OFF_H
FM_IN_BAND_DAC
FM_IN_BAND_OFFSET_DAC
Lowband
Frac-N
Divide
Sweep_YIG Driver
3.2-10GHz
from
A29 Doubler
L_WIDELBW
L_POS_PHASE_INCR
STRB
L_RST
Prescaler
500-1000 MHz
VCO
FM
Loop Filter
&
Lead-Lag
Phase
Detector
5 MHz In
VCO
Tune
Reference
Divider /2
10 dB
Multi
Moduler
Diveder
RF
Power
Detector
from A8 Pre-Level Driver
to
Analog
Bus
8.5 GHz
FM Input
Sweep Start / Stop (to / from A9)
J3
J2
J2
to A8
A28 YIG
J1
1
10
2
3
4
5
8
9
7
> 3.2-10 GHz
> + 11 dBm
FM_OFFSET1
_DAC
> 17 dBM,
> 20 dBM 1EA
J1
Σ
A38 Option
1EH
Low Band
Switch Filter
L_40MOD
_OFF
20 to 40 GHz
ALC Mod
+V
40 to 70 GHz
ALC Mod
+V
to A36 Quadraplier
(67/70 Ghz models)
to A36 Quadraplier
(67/70 Ghz models)
6
MODF_PATH
MODF_AMP_ON_H
MODF_PLS_
ENB_L
A24 Coupler
2-20 GHz (20 GHz models)
2-40 GHz (40 GHz models)
A25 Detector
L_70MOD
_OFF
to A5 Sampler
and A6 Frac-N
to A5 Sampler
and A6 Frac-N
from A10
ALC
from A11 Pulse/
Analog Mod General
to A10
ALC
to A36
Quadraplier
(models over 44 GHz)

Table of Contents

Other manuals for Keysight Technologies E8257D

Related product manuals