EasyManua.ls Logo

Klimor EVO-S - Page 130

Klimor EVO-S
Print Icon
To Next Page IconTo Next Page
To Next Page IconTo Next Page
To Previous Page IconTo Previous Page
To Previous Page IconTo Previous Page
Loading...
128
EVO-S, EVO-H МОДУЛЬНЫЕ УСТАНОВКИ
ТЕХНИКО-ЭКСПЛУАТАЦИОННАЯ ДОКУМЕНТАЦИЯ
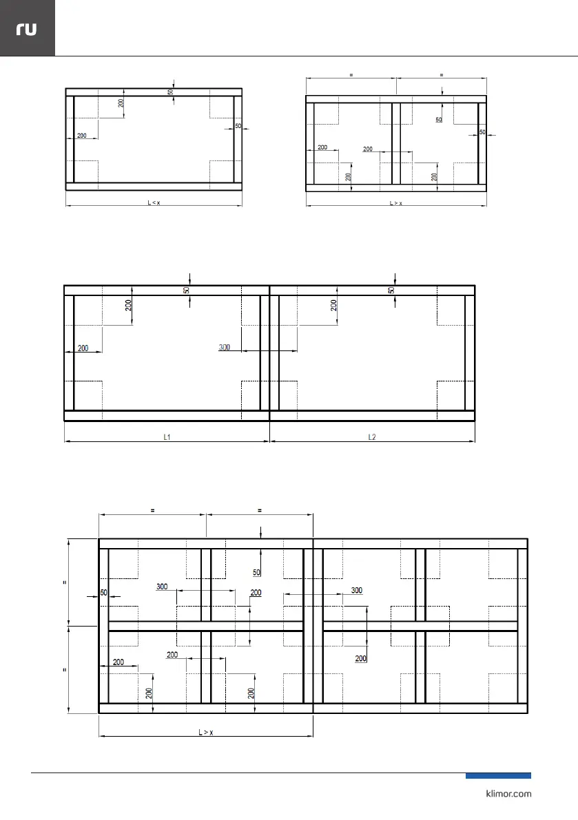
 25 Установка на раме  26 Рама для установки состоящей из одного моноблока с армированием
c)             200x200    -
       (    ).        -
    300x200  . 27.
 27 Рама для установки, состоящей из нескольких моноблоков
d)     0230  0090      300x200    
           . 28
.
 28 Рама для установок с размерами от 0230 до 0090

Table of Contents

Related product manuals