EasyManua.ls Logo

Kollmorgen SERVOSTAR 400

Default Icon
76 pages
To Next Page IconTo Next Page
To Next Page IconTo Next Page
To Previous Page IconTo Previous Page
To Previous Page IconTo Previous Page
Loading...
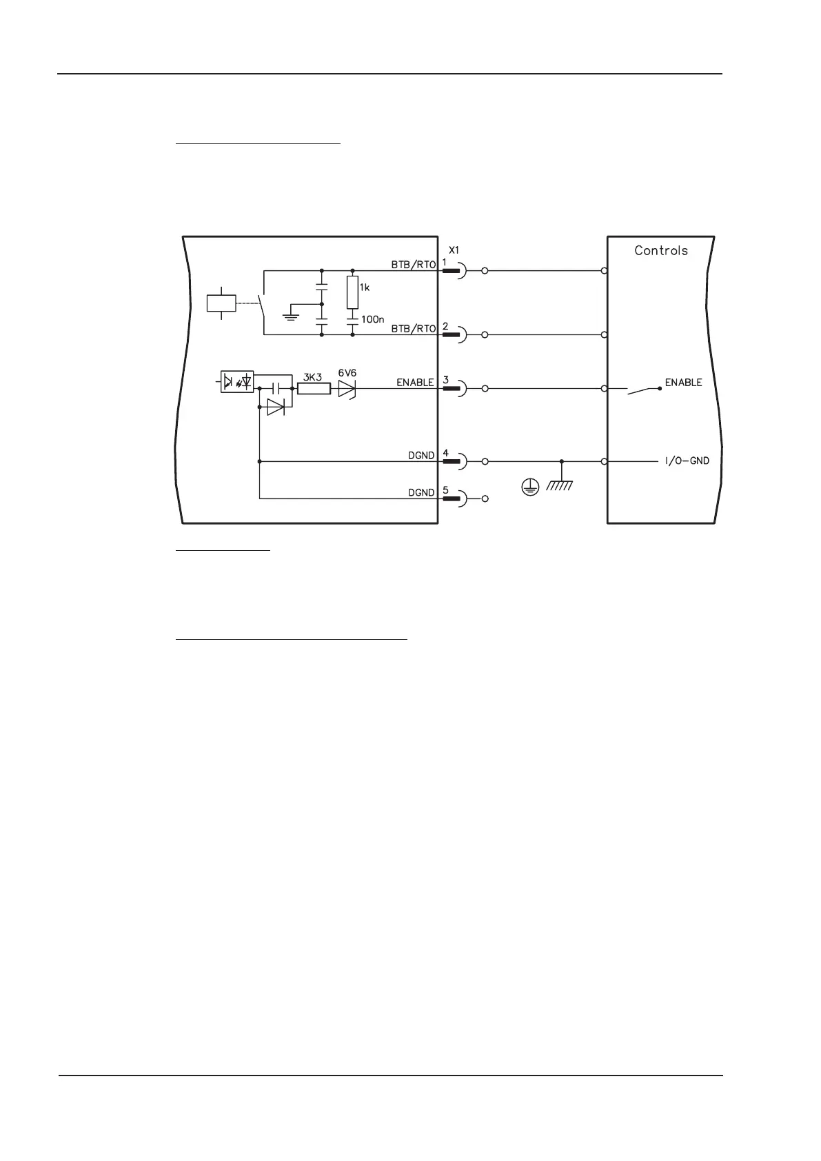
4.7.4 Digital control signals on the Master (X1)
Technical characteristics
Ground reference is Digital-GND (DGND, terminal X1/4,5)
The logic is dimensioned for +24V / 7mA (PLC-compatible)
H-level from +12...36V / 7mA, L-level from 0...7V/0mA
BTB/RTO: Relay output, max. 30V DC or 42V AC, 0.5A
ENABLE input
The output stage of the servo amplifier is activated by the enable signal
(terminal X1/3, input 24V, active-high).
In the inhibited state (low signal) the motor which is attached does not have any torque.
Ready-to-operate contact BTB/RTO
Operational readiness (terminals X1/1 and X1/2 ) is signalled via a floating relay contact.
The contact is closed when all servo amplifiers in the system are ready for operation.
This signal is not influenced by the enable signal, the I²t- limit, or the regen threshold.
All faults cause the BTB/RTO contact to open and the output stage to switch off
A list of the error messages can be found on page 60.
44 SERVOSTAR
®
400 Installation Manual
Interfaces 07/05 Kollmorgen
SERVOSTAR 400

Table of Contents

Other manuals for Kollmorgen SERVOSTAR 400

Related product manuals