EasyManua.ls Logo

krom schroeder E8 - Page 59

krom schroeder E8
76 pages
Print Icon
To Next Page IconTo Next Page
To Next Page IconTo Next Page
To Previous Page IconTo Previous Page
To Previous Page IconTo Previous Page
Loading...
Part 4: Installation and Start-up Installation
59
Version 2
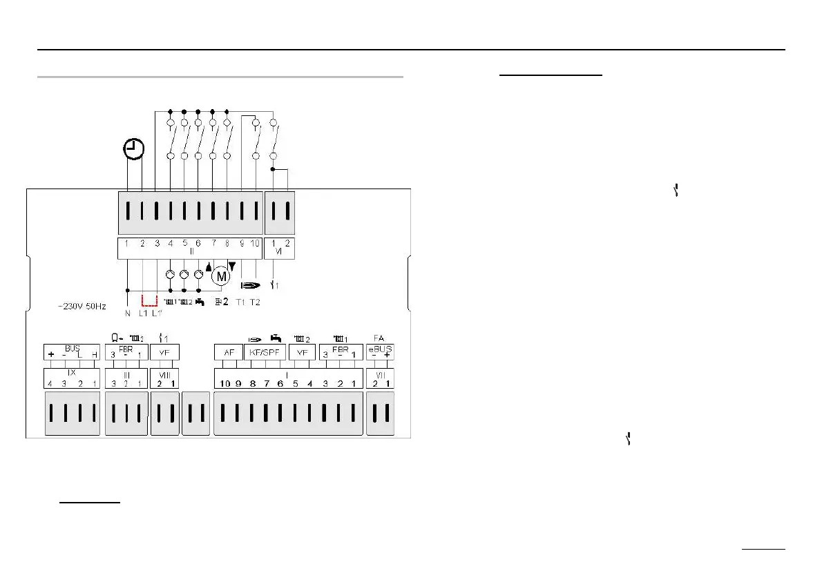
~230 V; Relay switching capacity 2(2) A, ~250 V
Terminal wiring
VII (1 + 2): eBUS (HS) or eBUS - DCF
I (1 - 3): FBR2 (FBR1) direct heating circuit
I (4 + 5): Flow sensor mixer circuit
I (6 + 7): Storage tank sensor
I (7 + 8): Boiler sensor
I (9 + 10): Outdoor sensor
VIII (1 + 2): Sensor multifunction relay
1
III (1 - 3): FBR2 (FBR1) for mixer circuit
III (2 + 3): Lower buffer sensor
IX (1 + 2): Data line CAN bus
IX (3 + 4): Power supply CAN bus
II (1): Neutral conductor, mains
II (2): Power supply, unit
II (3): Power supply, relay
II (4): Boiler circuit pump
II (5): Pump, mixer circuit
II (6): Storage tank pump
II (7): Mixer OPEN
II (8): Mixer CLOSED
II (9 + 10): Heat generator/Burner
VI (1 / 2): Multifunction relay
1
Displayed connection is the maximum version .0324
E Attention: Bus lines and sensor lines are to be installed separately from supply lines!

Table of Contents