EasyManua.ls Logo

Lenovo ThinkSystem SR950 7X12 - Cable Routing for Drives

Lenovo ThinkSystem SR950 7X12
202 pages
To Next Page IconTo Next Page
To Next Page IconTo Next Page
To Previous Page IconTo Previous Page
To Previous Page IconTo Previous Page
Loading...
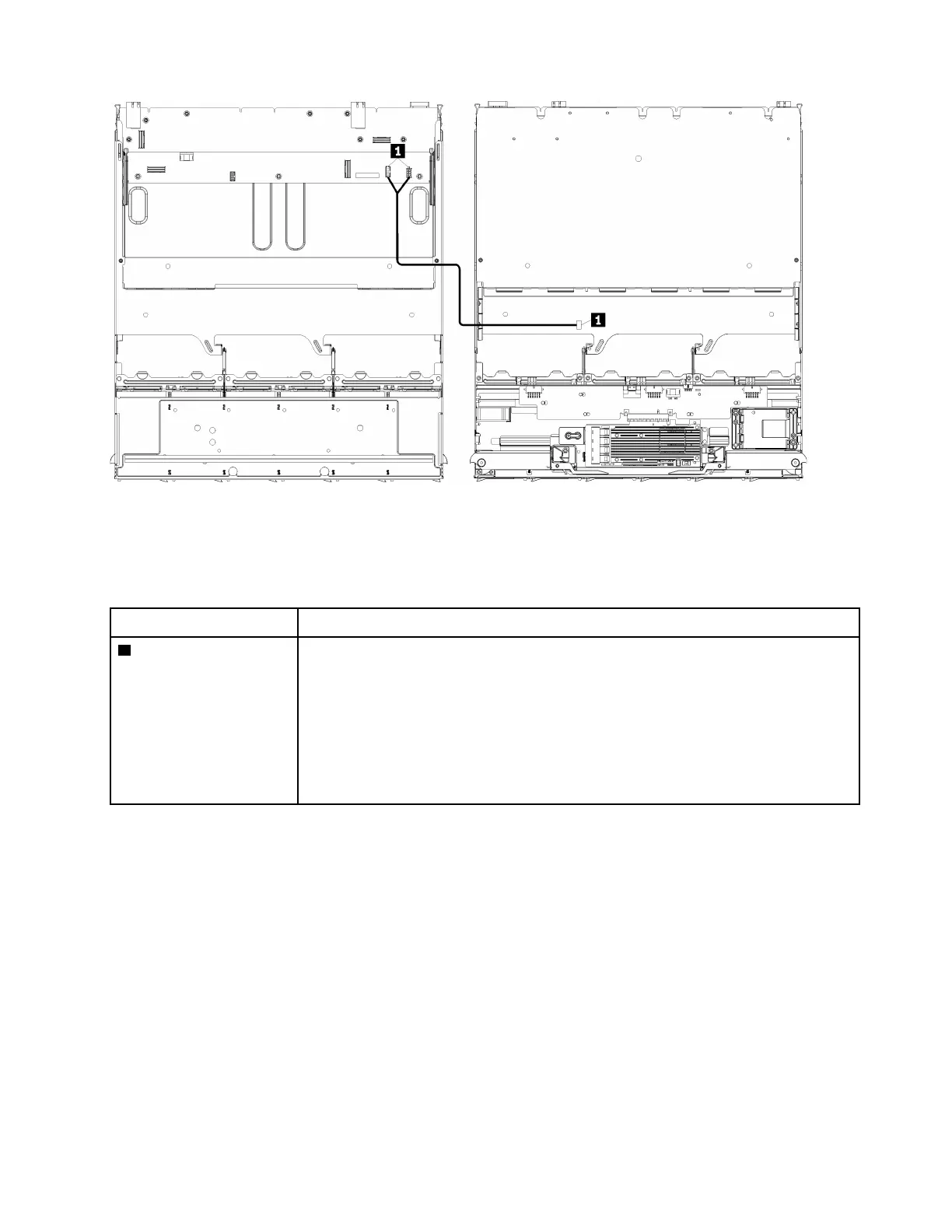
Note: In this illustration, the image on the left shows the tray right-side up and the image on the right shows
the tray upside down.
Figure 12. Cable routing, common cables (upper tray with storage-board assembly)
Table 12. Cable routing, common cables (upper tray)
Cable Routing
1 Fan cage cable
From: Fan cage connector (underside of fan cage)
To:
Lower compute system board in upper compute tray, “Fan board” power (J56) and
signal (J40) connectors (see “System-board connectors” on page 103)
Storage-board assembly in upper tray, fan power (J3) and signal (J5) connectors
(see “Storage-board-assembly connectors” on page 103)
Note: Do not route the fan cage cable in the upper tray through any cable guides.
Cable routing for drives
Use this section to understand how to route cables for drives and related components.
Cable routing for drive components is different for the lower and upper trays:
“Drive cable routing (lower tray)” on page 30:
Common drive cables (lower tray)
SAS drive cables (lower tray)
NVMe drive cables (lower tray)
“Drive cable routing (upper tray)” on page 33:
Common drive cables (upper tray)
SAS drive cables (upper tray)
NVMe drive cables (upper tray)
Chapter 2. Server components 29

Table of Contents

Related product manuals