EasyManua.ls Logo

Lenze E82EV751K4C - Fig. 6.7-3 Motor Connection 45

Lenze E82EV751K4C
588 pages
Print Icon
To Next Page IconTo Next Page
To Next Page IconTo Next Page
To Previous Page IconTo Previous Page
To Previous Page IconTo Previous Page
Loading...
Basic units in the power range 45 ... 55 kW
Power connections
6
Basic unit wiring
6.7
6.7.2
L
6.7-5
EDS82EV903-1.0-11/2002
l
E.l.c.bs must only be installed between mains supply and controller.
l E.l.c.bs can trip incorrectly because of
capacitive leakage currents of the cable shields during operation
(especially with long, shielded motor cables),
simultaneous connection of several controllers to the mains supply,
use of additional RFI filters.
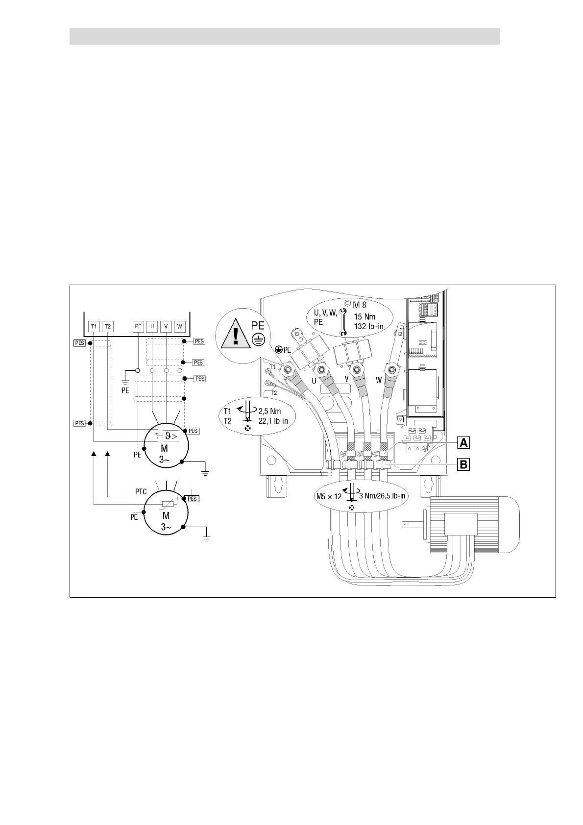
Motor connection
8200vec286
Fig. 6.7-3 Motor connection 45 ... 55 kW
0
Connect the shields of the motor cables with the shield clamp and screws M5
12 mm to the shield sheet.
1
Strain relief with cable ties.
Use low-capacity motor cables! (Core/core 190 pF/m, core/shield 320
pF/m)
Use short motor cables if possible!
PES
HF-shield end by PE connection via shield clamp.
T1,
T2
Connection terminals of motor temperature monitoring with PTC thermistor or
thermal contact (NC contact).
Route a separate cable (shielded) to X2/T1 and X2/T2 for the motor
temperature monitoring.
Activate the motor temperature monitoring under C0119 (e. g. C 0119 = 1)!
Route the control and mains cables separately from the motor cable!
Please observe the following
when using e.l.c.bs:
Show/Hide Bookmarks

Table of Contents

Related product manuals