EasyManua.ls Logo

Lenze E82EV751K4C - Fig. 6.8-4 Relay Connections K1 and K2; Connection of Relay Outputs K1 and K2

Lenze E82EV751K4C
588 pages
Print Icon
To Next Page IconTo Next Page
To Next Page IconTo Next Page
To Previous Page IconTo Previous Page
To Previous Page IconTo Previous Page
Loading...
Basic units in the power range 75 ... 90 kW
Connection of relay outputs K 1 and K2
6
Basic unit wiring
6.8
6.8.3
L
6.8-6
EDS82EV903-1.0-11/2002
Cable cross-sections U, V, W, PE
8200 vector mm
2
AWG
E82EV753K4B 70 2/0
E82EV903K4B 95 3/0
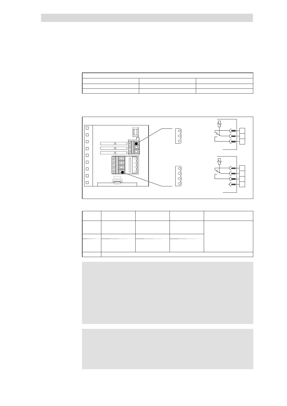
6.8.3 Connection of relay outputs K1 and K2
K14
K1
K2
K12
K11
K24
nc
K11
K21
K12
K22
X1.2
X1.3
K14
K24
nc
K22
K21
8200vec261
Fig. 6.8-4 Relay connections K1 and K2
Function Relay position set Message
(Lenze setting)
Technical data
X1.2/K11 Relay output
normally-closed
contact
open TRIP
A
C
2
5
0
V
/
3
A
X1.2/K12 Mid position contact
A
C
2
5
0
V
/
3
A
D
C
2
4
V
/
2
A
D
C
2
4
0
V
/
0
2
2
A
X1.2/K14 Relay output -
normally-open
contact
closed TRIP
D
C
2
4
V
/
2
A
...
D
C
2
4
0
V
/
0
.
2
2
A
PES HF-shield end by PE connection through shield bracket.
)
))
) Note!
l For switching the control signals use shielded cables and
establish an HF shield termination by PE connection.
l For mains potential switching unshielded cables are sufficient.
l The service life of the relay depends on the type of load (ohmic,
inductive or capacitive) and the value of the switching capacity.
l The output message can be changed under C0008 or C0415/1.
(
((
( Stop!
If you control a holding brake at the motor with the relay output, a
spark suppressor must be used in case of DC switching:
l Universal spark suppressor for 24 V DC brake,
l 6-pole Lenze brake rectifier for 180 V/205 V DC brake.
Cable cross-sections
Relay K1
Show/Hide Bookmarks

Table of Contents

Related product manuals