EasyManua.ls Logo

Lonking CDM853 - 2.2 OUTLINEDRAWINGOFWHEELLOADER

Lonking CDM853
153 pages
Print Icon
To Next Page IconTo Next Page
To Next Page IconTo Next Page
To Previous Page IconTo Previous Page
To Previous Page IconTo Previous Page
Loading...
63
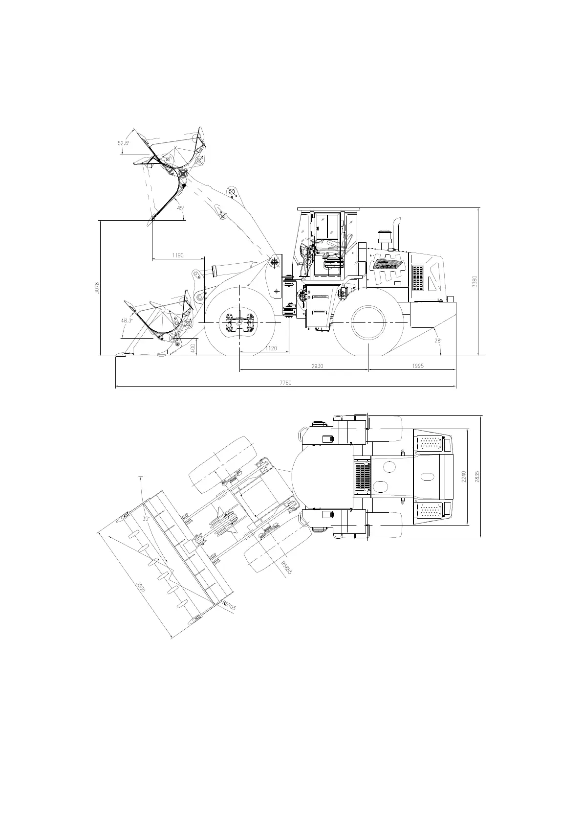
2.2OUTLINE
2.2OUTLINE
2.2OUTLINE
2.2OUTLINE DRAWING
DRAWING
DRAWING
DRAWING OF
OF
OF
OF WHEEL
WHEEL
WHEEL
WHEEL LOADER
LOADER
LOADER
LOADER
2.2.1 CDM853

Table of Contents