EasyManua.ls Logo

Lucent Technologies CPS4000 - Figure 5-8: ES611 Distribution Module Wiring

Lucent Technologies CPS4000
196 pages
Print Icon
To Next Page IconTo Next Page
To Next Page IconTo Next Page
To Previous Page IconTo Previous Page
To Previous Page IconTo Previous Page
Loading...
Lucent Technologies -48V CPS4000/CPS4000 PLUS Cabinet Power System
5 - 22 Installation and Testing Issue 13 December 2000
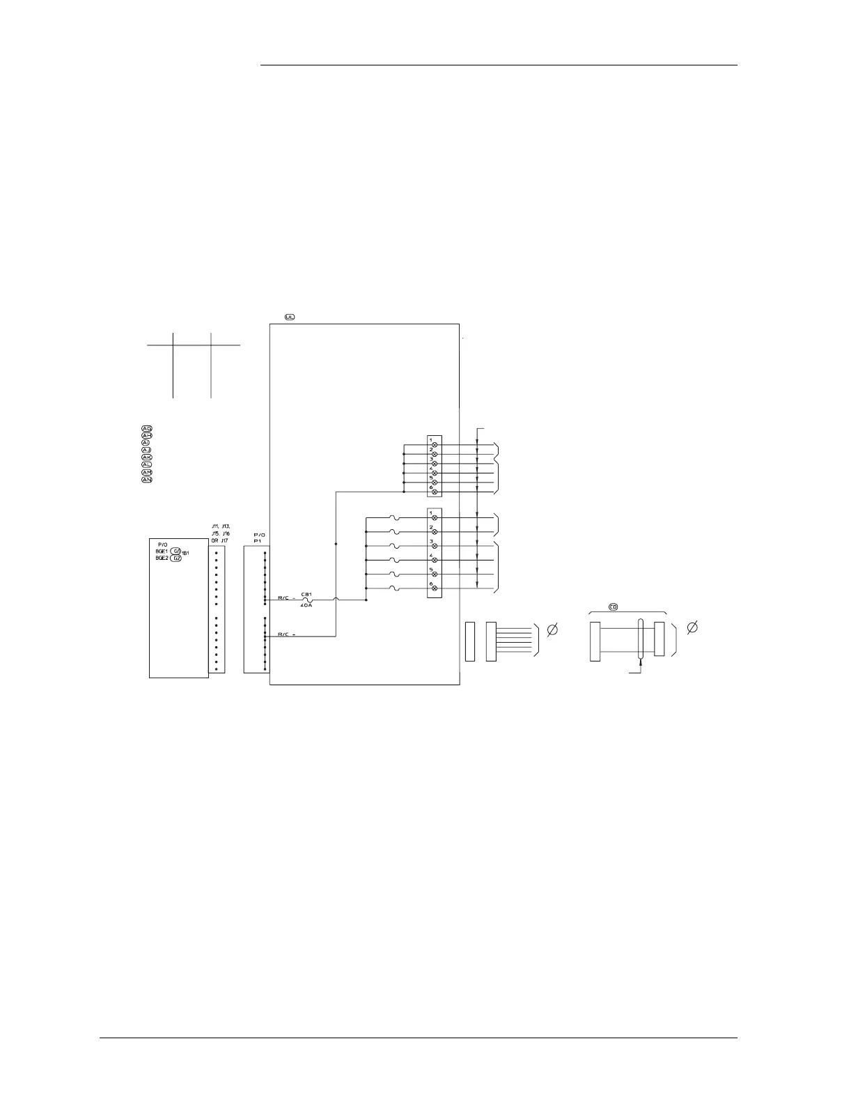
Distribution Modules, continued
ES611 The ES611 plug-in distribution module provides up to four circuit
breakers ranging in rating from 3 to 30 amperes and two GMT type
telecom fuses ranging in rating from 1/4 to 10 amperes. Six load and
return wire termination slots are provided with each module. The total
output current of each module is limited to 30 amperes. Distribute
system loads across circuit breakers. Refer to Figure 5-8.
Figure 5-8: ES611 Distribution Module Wiring
CB3 - CB6 Circuit Breakers
Amperage
ES611
ComcodeList
31
32
33
34
36
37
38
KS23616
407098417
407098425
407098433
407098458
407098474
407098482
407098490
AX1 E/W SAX Cover (1/4 Amp)
10 Ga Max
ATB1
ES611 48V Circuit Breaker Distribution Module
ATB2
Battery Return to
GMT Fuses
Battery Return to
Circuit Breakers
Battery Voltage to
GMT Fuses
F1
F2
F3/CB3
F4/CB4
F5/CB5
F6/CB6
P2 P2 P9
To Fuse Alarm
AR BR
1
2
BL
Dist_Alm
847380698
Cable Assembly
J2
1
2
3
4
5
6
1
2
3
4
5
6
1
2
3
4
5
6
Battery Voltage to
Circuit Breaker
RTN
Fuse Alarm
Fuse Alarm
Output
F1 - F2 GMT Fuses
AX1 E/W SAX Cover (1/2 Amp)
AX1 E/W SAX Cover (1-1/3 Amp)
AX1 E/W SAX Cover (2 Amp)
AX1 E/W SAX Cover (3 Amp)
AX1 E/W SAX Cover (5 Amp)
AX1 E/W SAX Cover (7-1/2 Amp)
AX1 E/W SAX Cover (10 Amp)
3
5
10
15
20
25
30
B8
B10
B12
D10
D12
Z8
Z10
Z12
B8
B10
B12
D10
D12
Z8
Z10
Z12
B2
B4
B6
D2
D4
Z2
Z4
Z6
B2
B4
B6
D2
D4
Z2
Z4
Z6

Table of Contents

Related product manuals