EasyManua.ls Logo

Lucent Technologies CPS4000 - Figure 5-2: Alarm, Intershelf, Lvd;Thermal Management

Lucent Technologies CPS4000
196 pages
Print Icon
To Next Page IconTo Next Page
To Next Page IconTo Next Page
To Previous Page IconTo Previous Page
To Previous Page IconTo Previous Page
Loading...
Lucent Technologies -48V CPS4000/CPS4000 PLUS Cabinet Power System
Issue 13 December 2000 Installation and Testing 5 - 5
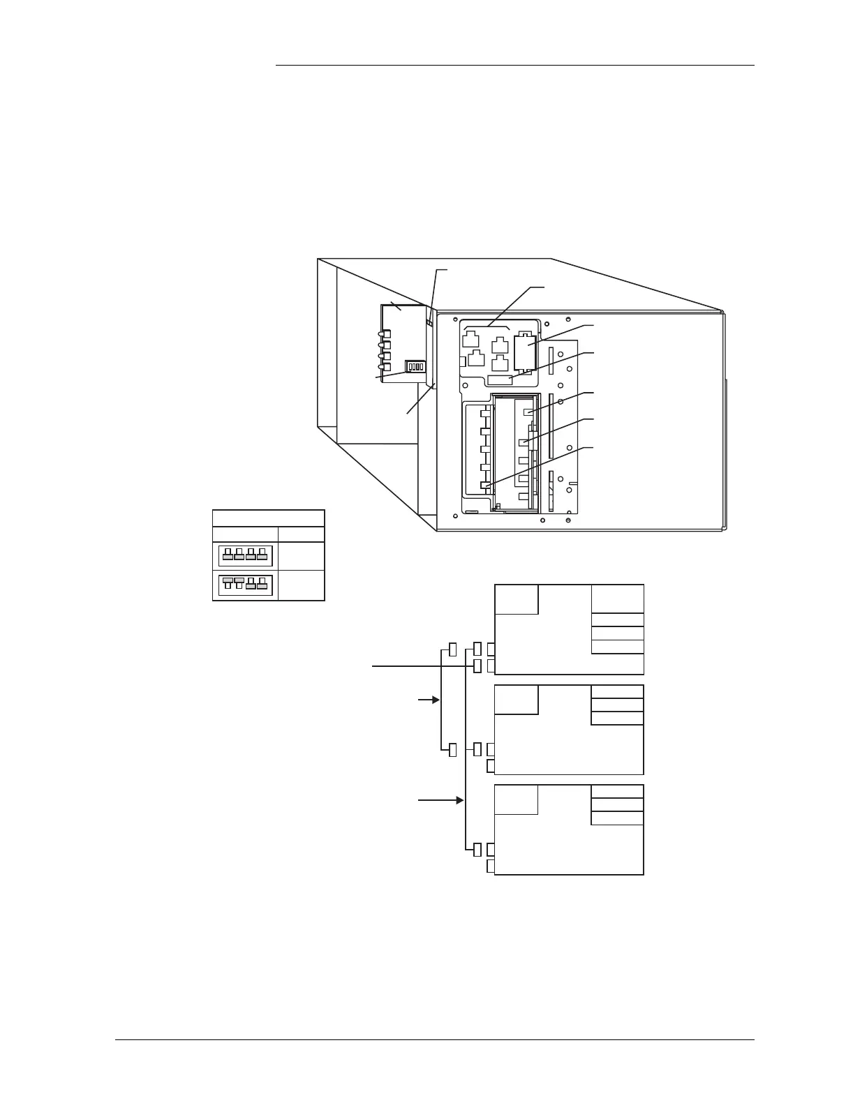
Installing Shelves and Batteries, continued
Interconnecting
the Initial and
Supplemental
Shelves
Figure 5-2: Alarm, Intershelf, LVD/Thermal Management
J10
J9
J12
J13
J14
J11
Right Side of CPS Shelf
Factory Default DIP Switch Setting
or LVD - 42.5 Volts
SW201 DIP Switch
Mounted on BSP2/BSP2C Board
J10-J13: Thermal
Probe Connectors
J15: Output 2 (Secondary)
Current Monitor
J9: Fuse Alarm
from External Alarm
TB3: Primary Output (-)
TB2: Battery (-) (4 Battery
Strings)
BSP Board
BSR Board
SW201
TB1: Primary Output (+)
and Battery (+) (4 Battery
Strings) (C.O. Ground)
14
J14: Ringer or Converter
Output Connector
LVD Settings
40.5V
SW201 Setting
1
1
2
2
3
3
4
4
42.5V
(default)
No MCU
or ACU
No MCU
or ACU
MCU
or ACU
3rd Shelf
2nd Shelf
1st Shelf
J7
J6
J7
J6
J7
J6
J9
J9
J9
J14
J14
J14
J15
J15
J15
3 Shelf Cable Assembly
847334794
2 Shelf Cable Assembly
847334786
Office Alarms
J10
J12
J11
J13
Note: Connectors J10 through J13 are present on the
second and third shelves but are not used.

Table of Contents

Related product manuals