EasyManua.ls Logo

Lucent Technologies DDM-2000 OC-12 - Page 1191

Lucent Technologies DDM-2000 OC-12
1676 pages
Print Icon
To Next Page IconTo Next Page
To Next Page IconTo Next Page
To Previous Page IconTo Previous Page
To Previous Page IconTo Previous Page
Loading...
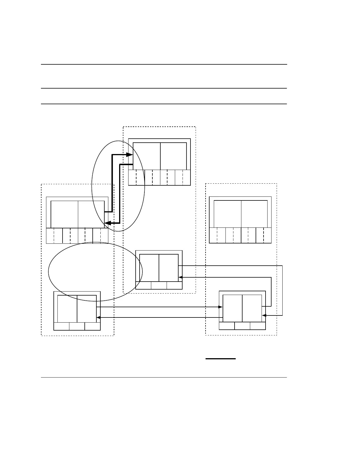
Order:Circuit363-206-295 NTP-034
22of9Page1997December1,Issue
LISTEDORDERINBELOWITEMSDO .... TOGODETAILS,FOR
FN
A1
MAIN B2
OLIU
IN
OUT
MAIN B1
OLIU
OUT
IN
FN
A2
FN
B1
FN
B2
FN
C1
FN
C2
FN
D1
FN
D2
MAIN 1 MAIN 2
OLIU OLIU
A
C
B
IN
OUT
OUT
IN
OC-3
Node 1
FN
A1
MAIN B2
OLIU
IN
OUT
MAIN B1
OLIU
OUT
IN
FN
A2
FN
B1
FN
B2
FN
C1
FN
C2
FN
D1
FN
D2
OC-12
Node 1
OC-12
Node 2
FN
A1
MAIN B2
OLIU
IN
OUT
MAIN B1
OLIU
OUT
IN
FN
A2
FN
B1
FN
B2
FN
C1
FN
C2
FN
D1
FN
D2
OC-12
Node 3
OC-3
Node 3
MAIN 1 MAIN 2
OLIU OLIU
A
C
B
IN
OUT
OUT
IN
OC-3
Node 2
MAIN 2 MAIN 1
OLIU OLIU
A
C
B
IN
OUT
OUT
IN
NEW
Fibers removed
Fibers added
7)of(2UpgradeRingOC-12toOC-3ofExample2.Figure

Table of Contents

Other manuals for Lucent Technologies DDM-2000 OC-12

Related product manuals