EasyManua.ls Logo

Medifa 6000 - Hydraulic Diagram (Models 601700, 601820)

Medifa 6000
66 pages
Print Icon
To Next Page IconTo Next Page
To Next Page IconTo Next Page
To Previous Page IconTo Previous Page
To Previous Page IconTo Previous Page
Loading...
58
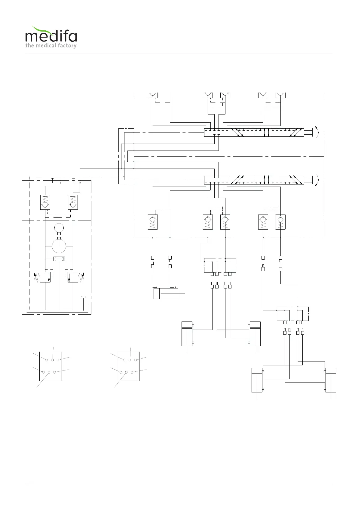
Re. Rücken-Zylinder
Li. Rücken-Zylinder
600 01
L
Rotationsventil II (4x90°)
A
B
Hub-Zylinder Lateral-ZylinderTrendelenburg-Zylinder
Rotationsventil I (4x90°)
600 02
600 03
M
T
A
Hydraulik-Aggregat
Verteilerplatte
B
Brems-Zylinder
600 04
600 05
600 06
600 07
600 08 600 09
600 10
600 11
600 12
600 13
600 14
600 15
120 01 120 02
820 10
820 09
820 11
820 12
Re. Gallenbank-Zylinder
Verteilerplatte
Li. Gallenbank-Zylinder
820 08
820 06
820 05
820 07
820 03
820 04
Anschlüsse
Rückseite
Rotationsventil I
600 04
600 05
600 06
600 08
600 09
600 07
600 10
600 11
600 12
600 14
600 15
600 13
Anschlüsse
Rückseite
Rotationsventil II
Service manual for medifa 6000 mobile operating tables, version 2.0
Hydraulic diagram
9.2 Hydraulic diagram 601700, 601820

Table of Contents

Related product manuals