EasyManua.ls Logo

Nexus 1250 - Mounting the Nexus LED External Displays

Nexus 1250
186 pages
Print Icon
To Next Page IconTo Next Page
To Next Page IconTo Next Page
To Previous Page IconTo Previous Page
To Previous Page IconTo Previous Page
Loading...
Doc# E107706 3 - 2
3: Hardware Installation
Electro Industries/GaugeTech
The Leader In Power Monitoring and Smart Grid Solutions
Electro Industries/GaugeTech
The Leader In Power Monitoring and Smart Grid Solutions
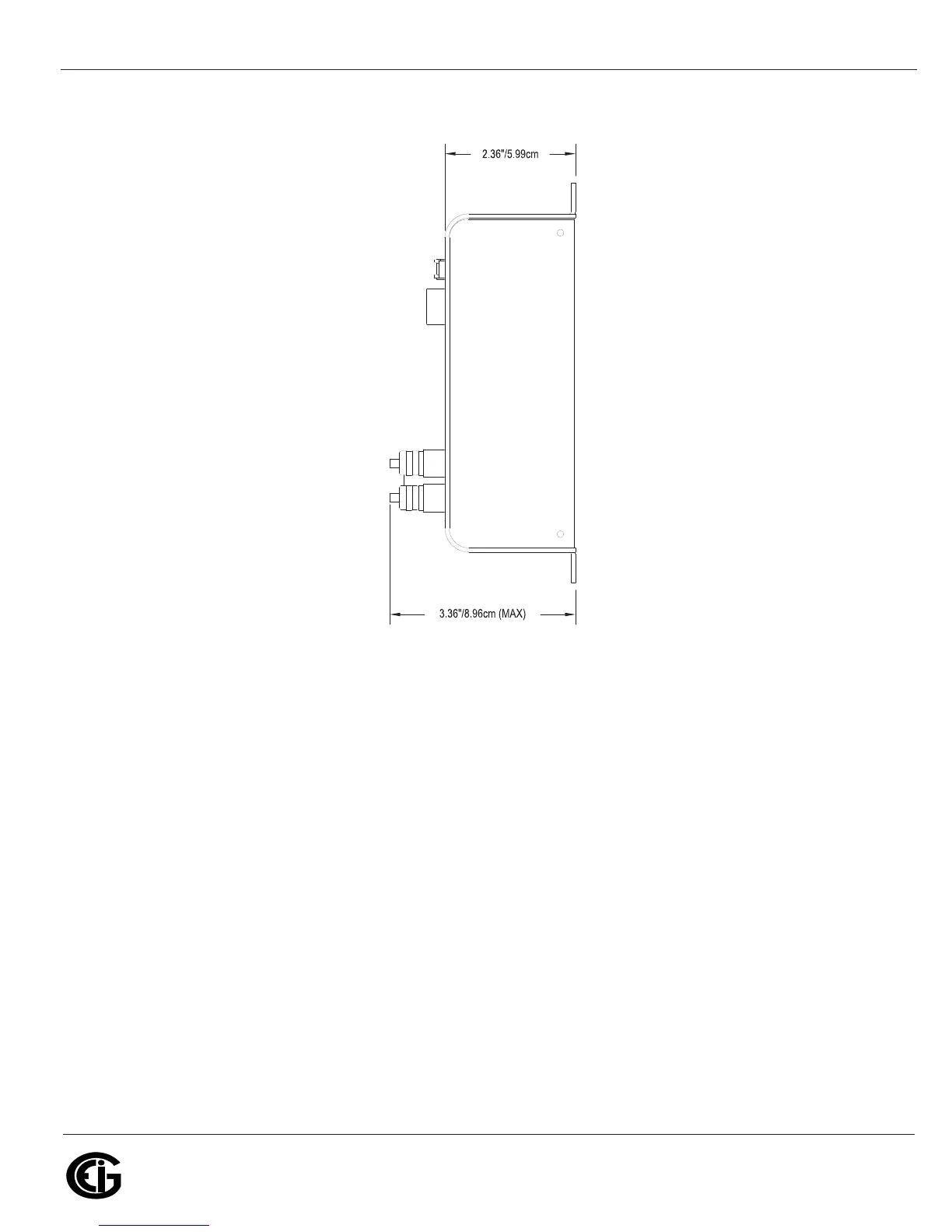
Figure 3.2: Nexus® 1250/1252 Mounting Diagram Side View
3.2: Mounting the Nexus
®
LED External Displays
The Nexus® 1250/1252 LED displays (model numbers P40N+, P41N+ and P43N+)
mount using a standard ANSI C39.1 drill plan.
Secure the four mounting studs to the back of the panel with the supplied nuts.
Six feet of RS485 communication/power cable harness is supplied. Allow for at least a
1.25-inch (3.17cm) diameter hole in the back for the cable harness. See Chapter 5 for
communication and power supply details.
The cable harness brings power to the display from the Nexus® 1250/1252 meter,
which supplies 15–20V DC. The P40N+ (or P41N+ or P43N+) can draw up to 500mA
in display test mode.

Table of Contents

Related product manuals